Back to Garden Rooms and Orangeries
Garden Rooms and Orangeries - WS01702
Also in: Home Leisure Buildings
This is a building we have previously constructed which you may want to use as a starting point for your design. All our buildings are designed and manufactured to your individual specifications.
Details
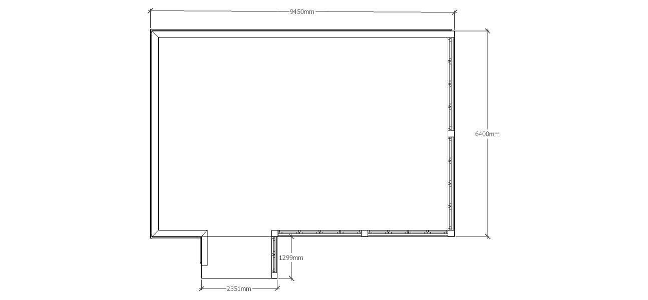
A 5 bay oak frame leisure building made up of 2 frames, the first frame accounts for a single bay and is a link between an existing building and the other frame, it has a flat roof and full height glazing at the front. The second frame is 4 bays in size and has the entire front and right wall covered with full height glazing to allow plenty of natural light into the building and above on the left is a single winodw in the gable end. while at the rear is a long narrow window.
Dimensions
| G/F Area (sq m) | 63.22 |
| Total Area (sq m) | 63.22 |
| Length (m) | 9.4 |
| Depth (m) | 7.7 |
| Ridge Height (m) | 5 |
| Roof Pitch (deg) | 35 |
| Number of Bays | 5 |
| Location | Belgium |
| Ridge Height (m) | Flat Roof |



