Home Leisure Buildings - WS01701
This is a building we have previously constructed which you may want to use as a starting point for your design. All our buildings are designed and manufactured to your individual specifications.
Details
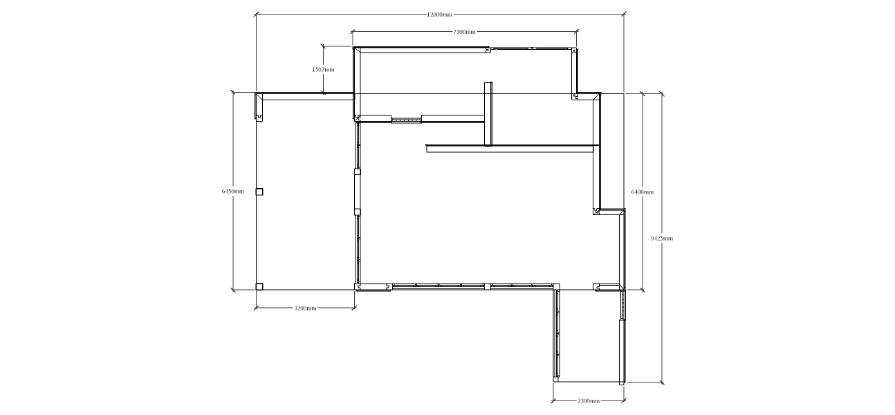
A 6 bay oak framed sling brace leisure building made up of 2 frames. The first frame is 5 bays, 3 of which are on the ground floor and 2 are on the first floor, one bay is left open at the front and left side with full height glazing on the right while the other 2 bays half full height glazing at the front to allow plenty of natural light into the building, at the rear is an internal aisle with a pair of iroko garage doors and a2 light window. Inside the building is an oak staircase leading to the first floor, on the first floor at the rear is a dormer with a 5 light window while on the left is 2 panes of full height glazing and on the right of the building is a 2 light window in the gable end. The second frame is a single bay with full height glazing at the front and at the rear is a 1light window and a solid single door.
Dimensions
| G/F Area (sq m) | 77.75 |
| Total Area (sq m) | 77.75 |
| Length (m) | 12 |
| Depth (m) | 10.9 |
| Ridge Height (m) | 6.5 |
| Roof Pitch (deg) | 45 |
| Number of Bays | 6 |
| Location | Belgium |
| Ridge Height (m) | Sling Brace |




