Back to Home Leisure Buildings
Home Leisure Buildings - WS01697
This is a building we have previously constructed which you may want to use as a starting point for your design. All our buildings are designed and manufactured to your individual specifications.
Details
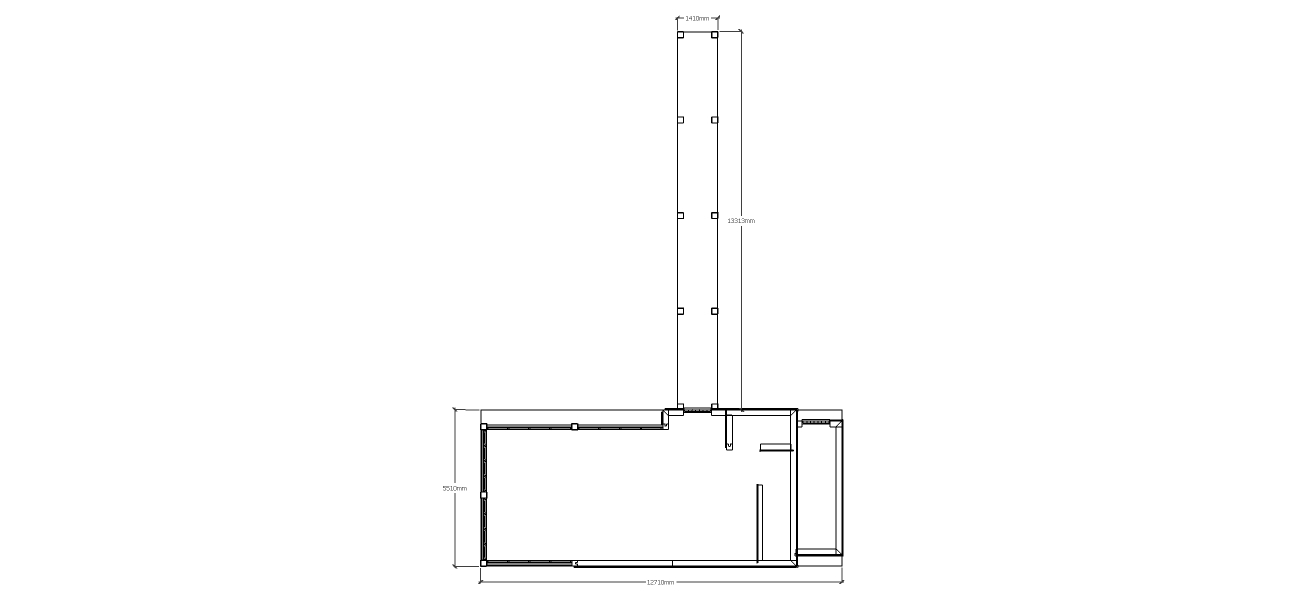
A 9 bay oak frame building made up of 4 frames. The first frame is 2 bays in size with the entire front wall filled with full height glazing as well as the right wall and part of the rear wall to allow plenty of natural light into the building. The second frame is also 2 bays in size with a solid single door at the front and 2 2light windows at the rear. The third frame is a single bay with just solid single door at the front. The final frame is 4 bays in size and is open on all sides.
Dimensions
| G/F Area (sq m) | 83.12 |
| Total Area (sq m) | 83.12 |
| Length (m) | 18.8 |
| Depth (m) | 12.7 |
| Ridge Height (m) | 4.6 |
| Roof Pitch (deg) | 40 |
| Number of Bays | 9 |
| Location | Belgium |




