Back to Four Bays and Upwards
Four Bays and Upwards - WS01695
This is a building we have previously constructed which you may want to use as a starting point for your design. All our buildings are designed and manufactured to your individual specifications.
Details
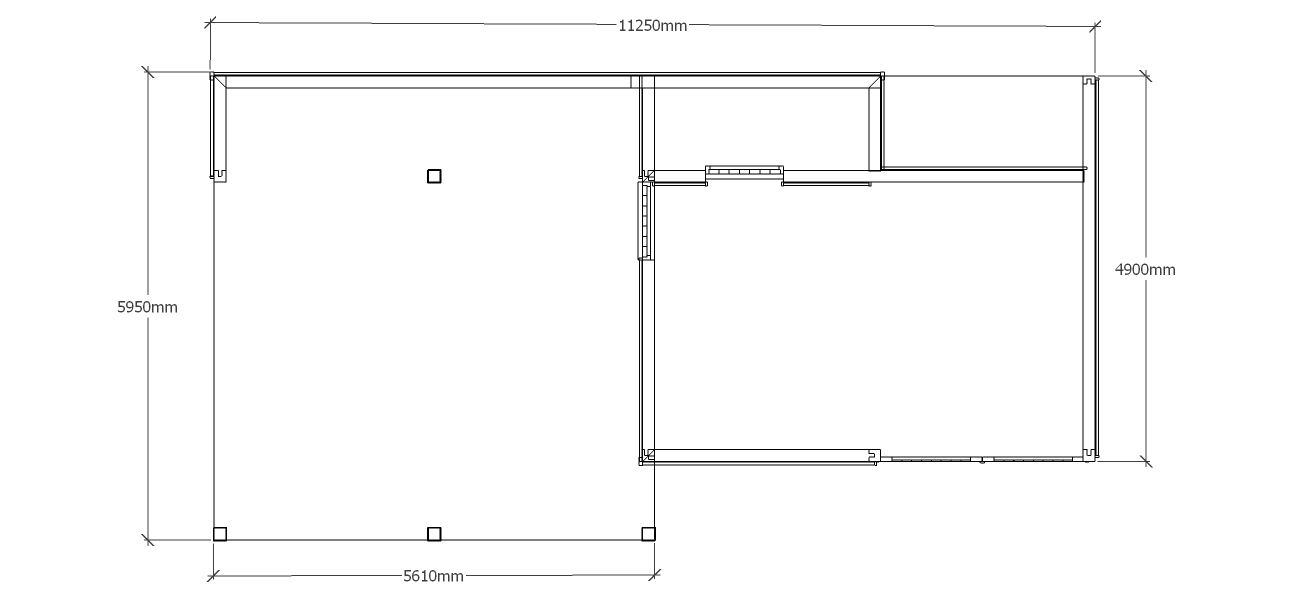
A 4 bay oak frame garage made up of 2 frames. The first frame accounts for the first 2 bays with the front left open and the left hand side only partially boarded, this frame also has an aisle at the rear. The second frame makes up the other 2 bays with 1 boarded at the front and housing a mullion window while the other has a pair of iroko garage doors at the front. On the left side is a solid single door connecting the 2 frames.
Dimensions
| G/F Area (sq m) | 67.76 |
| Total Area (sq m) | 67.76 |
| Length (m) | 11.2 |
| Depth (m) | 5.9 |
| Ridge Height (m) | 4.4 |
| Roof Pitch (deg) | 40 |
| Number of Bays | 4 |
| Location | Belgium |



