Back to Three Bay Oak Garages
Three Bay Oak Garages - WS01694
This is a building we have previously constructed which you may want to use as a starting point for your design. All our buildings are designed and manufactured to your individual specifications.
Details
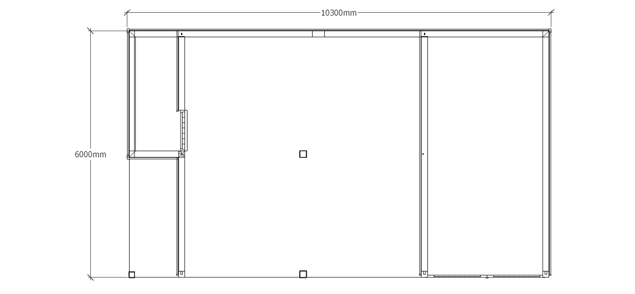
A 3 bay oak framed garage with two bays left open at the front and the third enclosed with a pair of iroko garage doors, the left side of the building has an aisle that is partly internal and partly external.
Dimensions
| G/F Area (sq m) | 61.8 |
| Total Area (sq m) | 61.8 |
| Length (m) | 10.3 |
| Depth (m) | 6 |
| Ridge Height (m) | 4.96 |
| Roof Pitch (deg) | 40 |
| Number of Bays | 3 |
| Location | Belgium |



