Back to Oak Framed Extensions
Oak Framed Extensions - WS01691
Also in: Oak lean to
This is a building we have previously constructed which you may want to use as a starting point for your design. All our buildings are designed and manufactured to your individual specifications.
Details
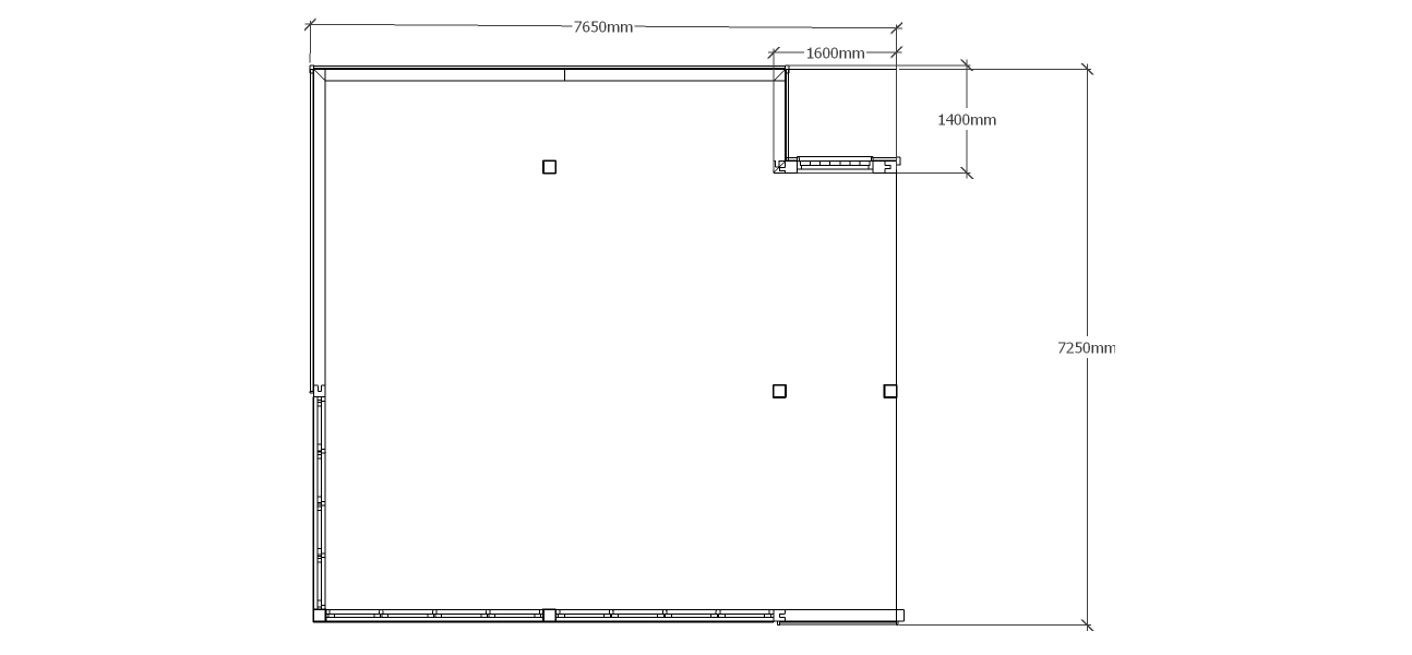
A 3 bay oak frame home extesion with the left side open to allow it to attach to an existing building, at the front there is a section of full height glazing to allow plenty of natural light into the building and another section on the left wall, at the rear is an internal aisle and a half glazed door.
Dimensions
| G/F Area (sq m) | 54.72 |
| Total Area (sq m) | 54.72 |
| Length (m) | 7.6 |
| Depth (m) | 7.2 |
| Ridge Height (m) | 4 |
| Roof Pitch (deg) | 35 |
| Number of Bays | 3 |
| Location | Belgium |




