Back to Four Bays and Upwards
Four Bays and Upwards - WS01690
This is a building we have previously constructed which you may want to use as a starting point for your design. All our buildings are designed and manufactured to your individual specifications.
Details
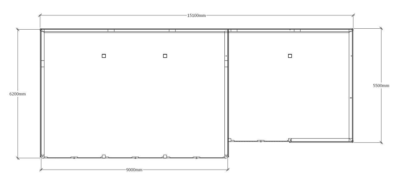
A 5 bay oak frame garage made up of 2 frames. The first frame accounts for 3 bays with a pair of iroko garage doors at the front of each bay,on the left is a single mullion windows and at the rear is an internal aisle. The second frame makes up the other 2 bays with a pair of iroko garge doors and a mullion window at the front, this frame also has an internal aisle at the rear.
Dimensions
| G/F Area (sq m) | 88.8 |
| Total Area (sq m) | 88.8 |
| Length (m) | 15 |
| Depth (m) | 6.2 |
| Ridge Height (m) | 4.2 |
| Roof Pitch (deg) | 35 |
| Number of Bays | 5 |
| Location | Belgium |



