Back to Three Bay Oak Garages
Three Bay Oak Garages - WS01688
This is a building we have previously constructed which you may want to use as a starting point for your design. All our buildings are designed and manufactured to your individual specifications.
Details
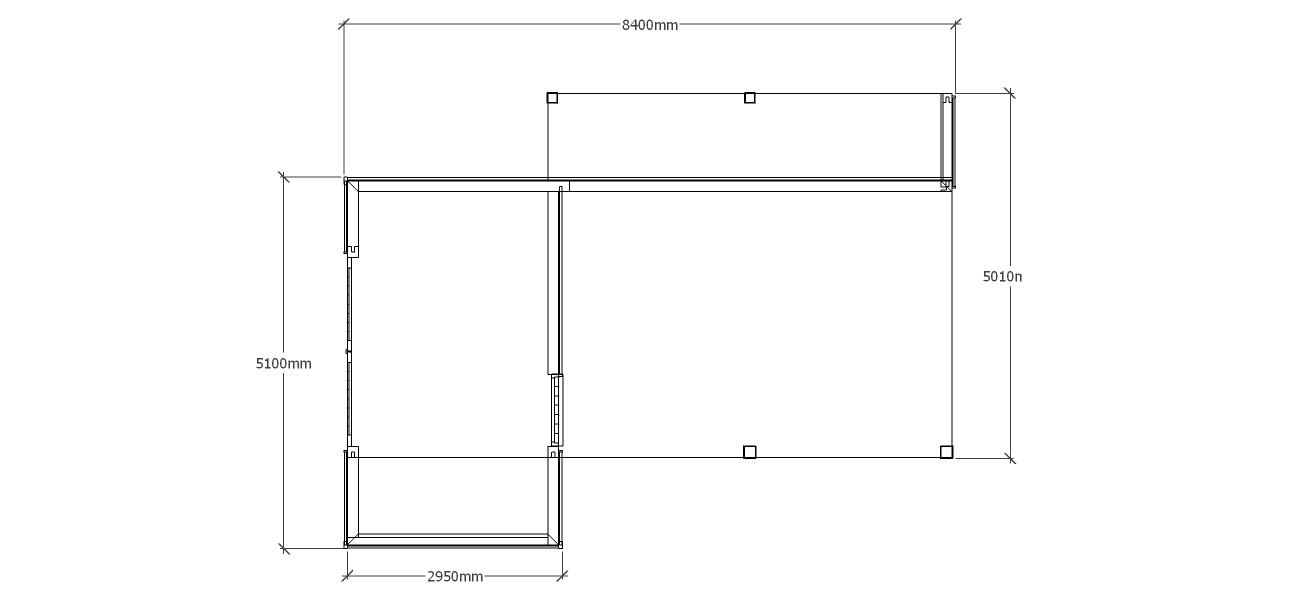
A 3 bay oak framed garage with 2 bays left open at the front and right side whilst the other bay has an internal aisle at the front with a solid single door on the right partition wall, on the right side of the building is a pair of iroko garage doors and this building also has an external aisle at the rear.
Dimensions
| G/F Area (sq m) | 42 |
| Total Area (sq m) | 42 |
| Length (m) | 8.4 |
| Depth (m) | 6.3 |
| Ridge Height (m) | 4 |
| Roof Pitch (deg) | 40 |
| Number of Bays | 3 |
| Location | Belgium |




