Back to Home Leisure Buildings
Home Leisure Buildings - WS01687
This is a building we have previously constructed which you may want to use as a starting point for your design. All our buildings are designed and manufactured to your individual specifications.
Details
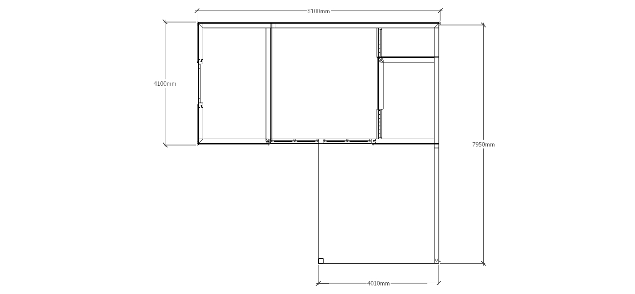
A 5 bay oak framed building made up of 2 frames, the first frame is a single bay in size open at the front and right hand side. The second frame is 4 bays in size with a section of full height glazing at the front and on the left is a solid single door with a 2 light window either side
Dimensions
| G/F Area (sq m) | 48.65 |
| Total Area (sq m) | 48.65 |
| Length (m) | 8.1 |
| Depth (m) | 7.95 |
| Ridge Height (m) | 4.1 |
| Roof Pitch (deg) | 40 |
| Number of Bays | 5 |
| Location | Belgium |



