Back to Home Leisure Buildings
Home Leisure Buildings - WS01676
This is a building we have previously constructed which you may want to use as a starting point for your design. All our buildings are designed and manufactured to your individual specifications.
Details
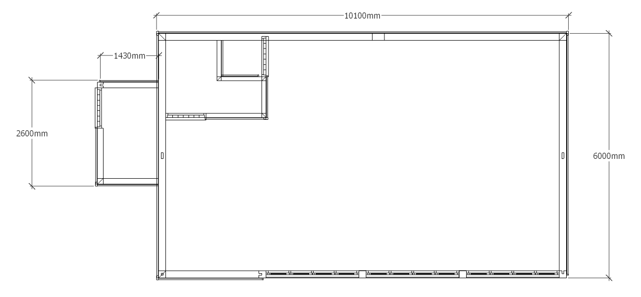
A 4 bay oak framed leisure with upper floor. 3 bays to the right have full height glazing to the front and the left bay is closed. There is also a small out building attatched to the left hand side which has a single door. On the upper floor there is a 2 light window in the gable and to the front is a mono pitch dormer containing a 4 light window.
Dimensions
| G/F Area (sq m) | 63.75 |
| Total Area (sq m) | 63.75 |
| Length (m) | 11.5 |
| Depth (m) | 6 |
| Ridge Height (m) | 5.4 |
| Roof Pitch (deg) | 45 |
| Number of Bays | 5 |
| Location | Belgium |
| Ridge Height (m) | Monopitch |




