Back to Three Bay Oak Garages
Three Bay Oak Garages - WS01670
This is a building we have previously constructed which you may want to use as a starting point for your design. All our buildings are designed and manufactured to your individual specifications.
Details
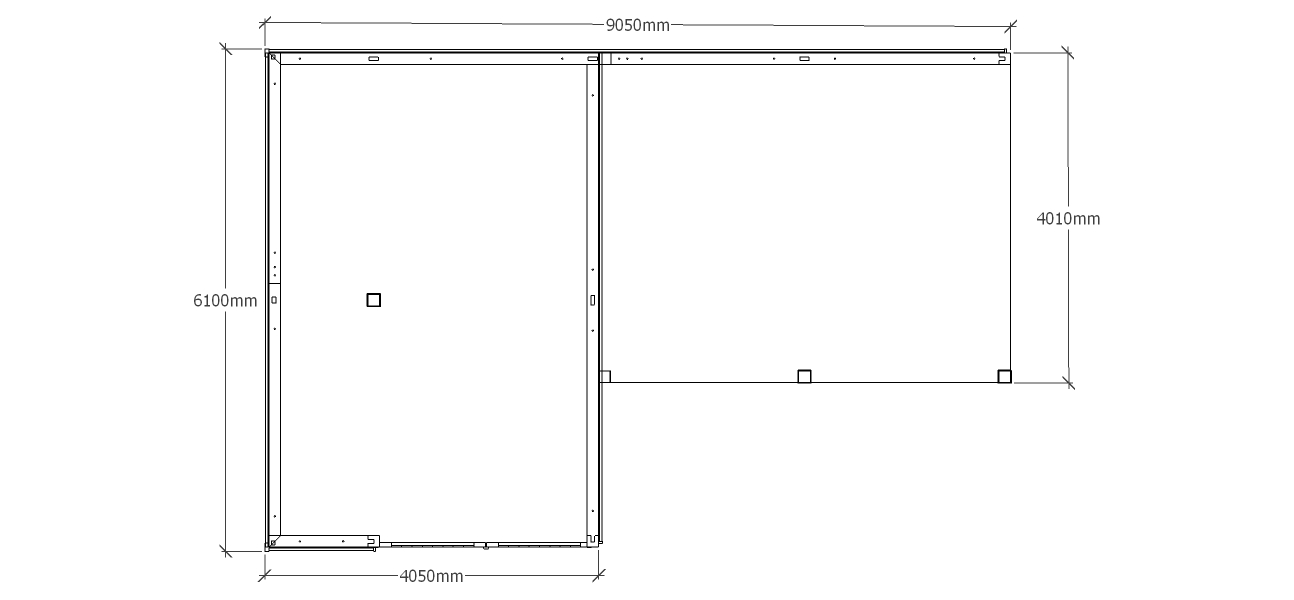
A 3 bay oak frame garage made up of 2 frames. The first frame is 1 bays in size and has a pair of garage doors on the left and an internal aisle at the rear. The second frame is left open at the front and right side and has a gable ended roof on the right.
Dimensions
| G/F Area (sq m) | 60 |
| Total Area (sq m) | 60 |
| Length (m) | 9 |
| Depth (m) | 6.1 |
| Ridge Height (m) | 4.1 |
| Roof Pitch (deg) | 40 |
| Number of Bays | 3 |
| Location | Belgium |



