Home Leisure Buildings - WS01667
This is a building we have previously constructed which you may want to use as a starting point for your design. All our buildings are designed and manufactured to your individual specifications.
Details
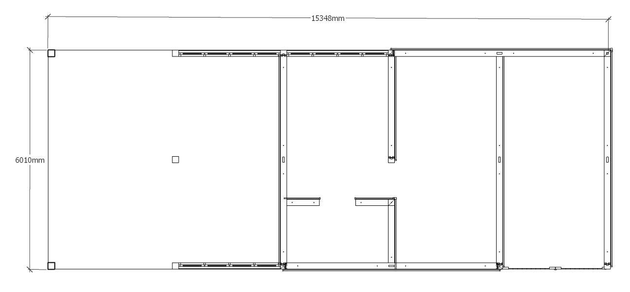
A 5 bay oak framed leisure building with the left hand bay ope on all sides, the next bay has full height glazing along the entire front and rear wall to allow plenty of natural light into the room. The next bay is boarded on the front, left and the rear with a 2 light window at the front and full height glazing on the rear wall.the next bay has a window with a further 4 panes at the rear and another 2 light window at the front, the final bay has a 2 light window at the rear and a pair of iroko garage doors at the front.
Dimensions
| G/F Area (sq m) | 93.94 |
| Total Area (sq m) | 93.94 |
| Length (m) | 15.4 |
| Depth (m) | 6.1 |
| Ridge Height (m) | 5 |
| Roof Pitch (deg) | 40 |
| Number of Bays | 5 |
| Location | Belgium |




