Back to Home Leisure Buildings
Home Leisure Buildings - WS01662
This is a building we have previously constructed which you may want to use as a starting point for your design. All our buildings are designed and manufactured to your individual specifications.
Details
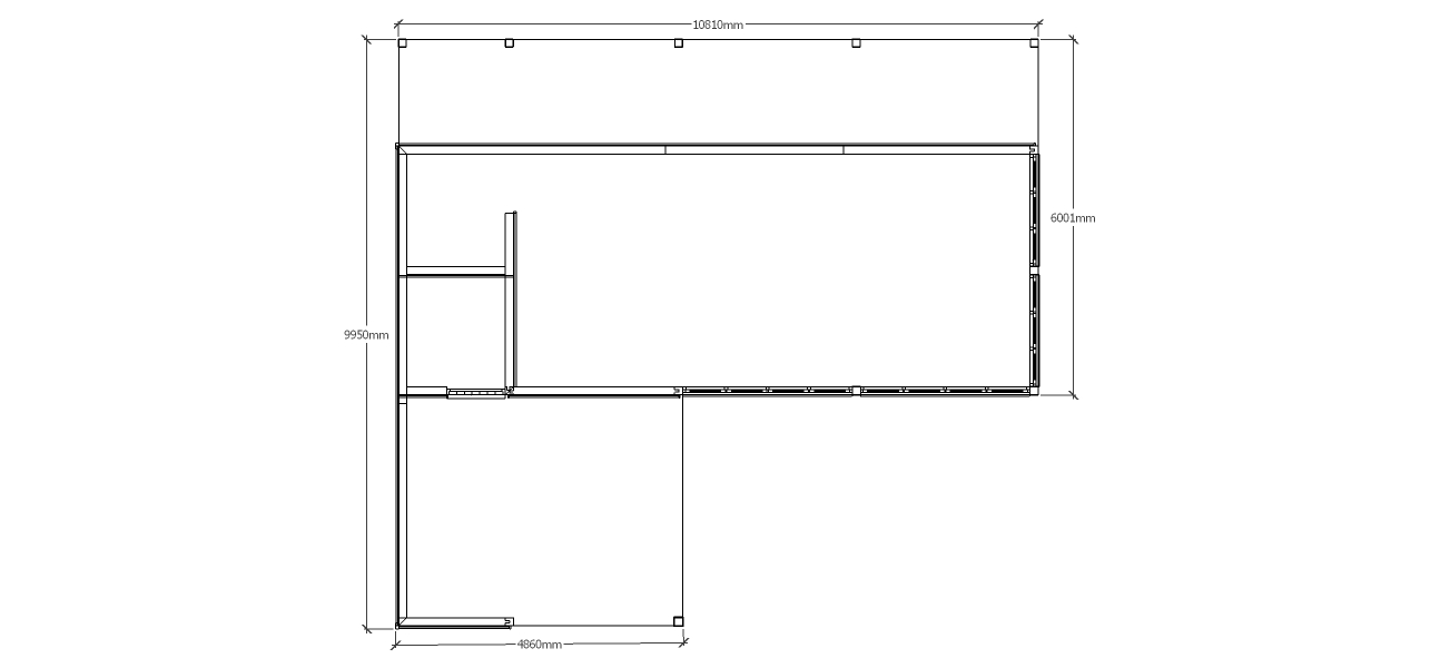
A 4 bay oak framed leisure building made up of 2 frames. The first frame is 1 bay in size and open at the front, it has an internal door on the right allowing acess to the other frame as well as 4 windows on the connecting wall. The second frame makes up the other 3 bays, there is full height glazing and on the front and the right of the building as well as an external aisle along the rear of the building.
Dimensions
| G/F Area (sq m) | 83.99 |
| Total Area (sq m) | 83.99 |
| Length (m) | 10.8 |
| Depth (m) | 9.95 |
| Ridge Height (m) | 3.8 |
| Roof Pitch (deg) | 33 |
| Number of Bays | 4 |
| Location | Belgium |




