Back to Two Bay Oak Garages
Two Bay Oak Garages - WS01634
This is a building we have previously constructed which you may want to use as a starting point for your design. All our buildings are designed and manufactured to your individual specifications.
Details
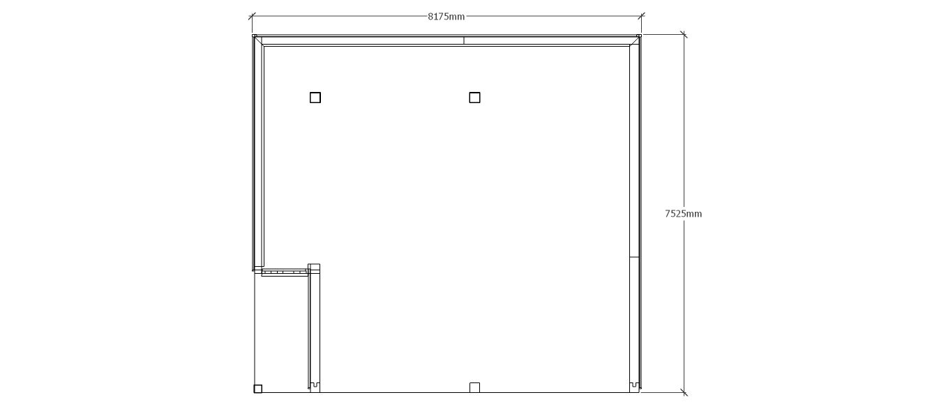
A 2 bay oak framed garage open at the front with an aisle on the left which is open to the front and enclosed to the rear with a single door, there is also an internal aisle at the rear.
Dimensions
| G/F Area (sq m) | 61.52 |
| Total Area (sq m) | 61.52 |
| Length (m) | 8.175 |
| Depth (m) | 7.525 |
| Ridge Height (m) | 5.05 |
| Roof Pitch (deg) | 35 |
| Number of Bays | 2 |
| Location | Cheshire |



