Back to Three Bay Oak Garages with Upper Floors
Three Bay Oak Garages with Upper Floors - WS01632
This is a building we have previously constructed which you may want to use as a starting point for your design. All our buildings are designed and manufactured to your individual specifications.
Details
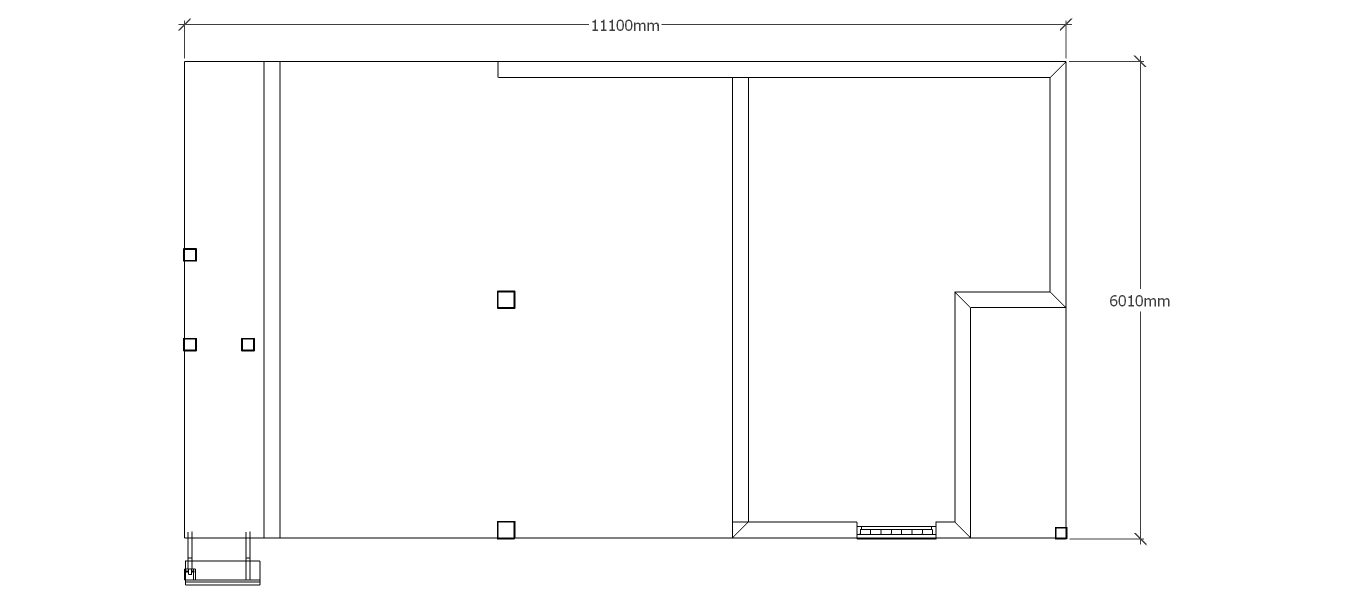
A oak framed garage with an upper floor. The 2 of the 3 bays on the ground floor are open at both the front and one of them is also open at the rear. The third bay has a solid single door at the frontand a mullion window. There is an aisle on the right with some internal and some external, on the left side is an external staircase granting access to the first floor. On the first floor there is a solid single door on the left and 2 dormer windows on the front.
Dimensions
| G/F Area (sq m) | 66 |
| F/F Area (sq m) | 21 |
| Total Area (sq m) | 87 |
| Length (m) | 11 |
| Depth (m) | 6 |
| Ridge Height (m) | 6.26 |
| Roof Pitch (deg) | 45 |
| Number of Bays | 3 |
| Location | Dorset |



