Back to One Bay Oak Garages with a Room Above
One Bay Oak Garages with a Room Above - WS01629
This is a building we have previously constructed which you may want to use as a starting point for your design. All our buildings are designed and manufactured to your individual specifications.
Details
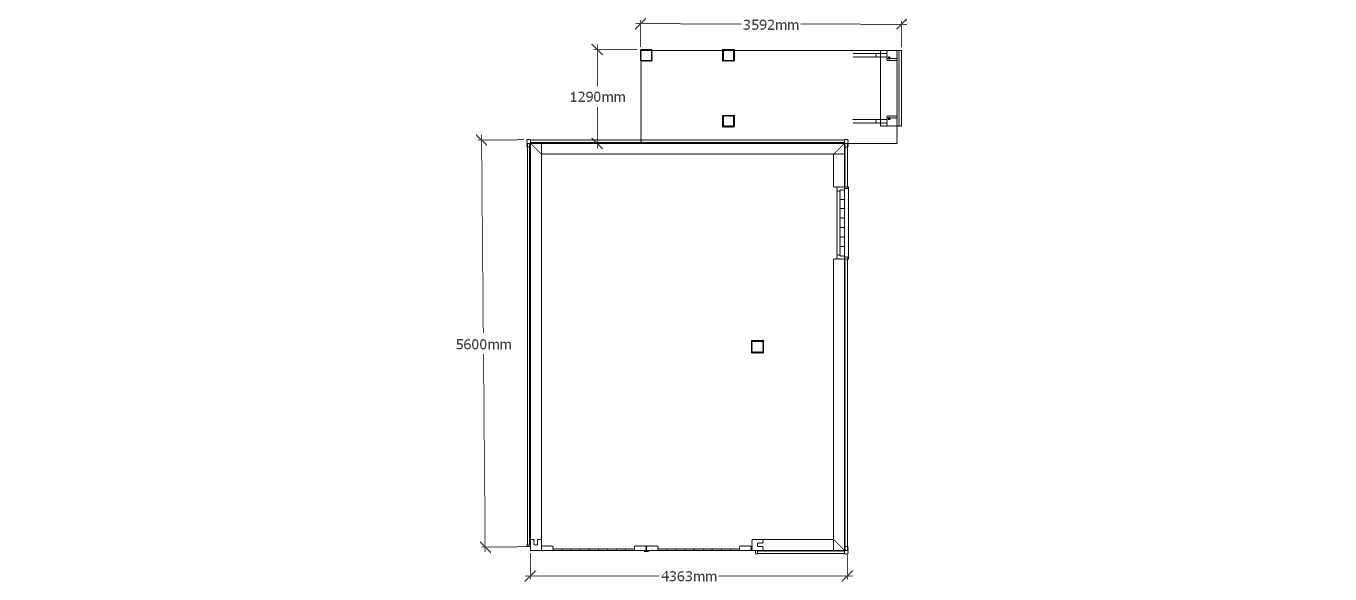
A single bay oak framed garage with an upper floor . The ground floor has an iroko garage door at the front, on the right there is a mullion window and a solid single door, at the rear is an external staircase leading to the first floor. The first floor has a dormer containing a solid single door and a slate roof
Dimensions
| G/F Area (sq m) | 24.43 |
| F/F Area (sq m) | 15.71 |
| Total Area (sq m) | 40.14 |
| Length (m) | 5.6 |
| Depth (m) | 4.3 |
| Ridge Height (m) | 5.22 |
| Roof Pitch (deg) | 45 |
| Number of Bays | 1 |
| Location | Hampshire |



