Back to Two Bay Oak Garages
Two Bay Oak Garages - WS01626
This is a building we have previously constructed which you may want to use as a starting point for your design. All our buildings are designed and manufactured to your individual specifications.
Details
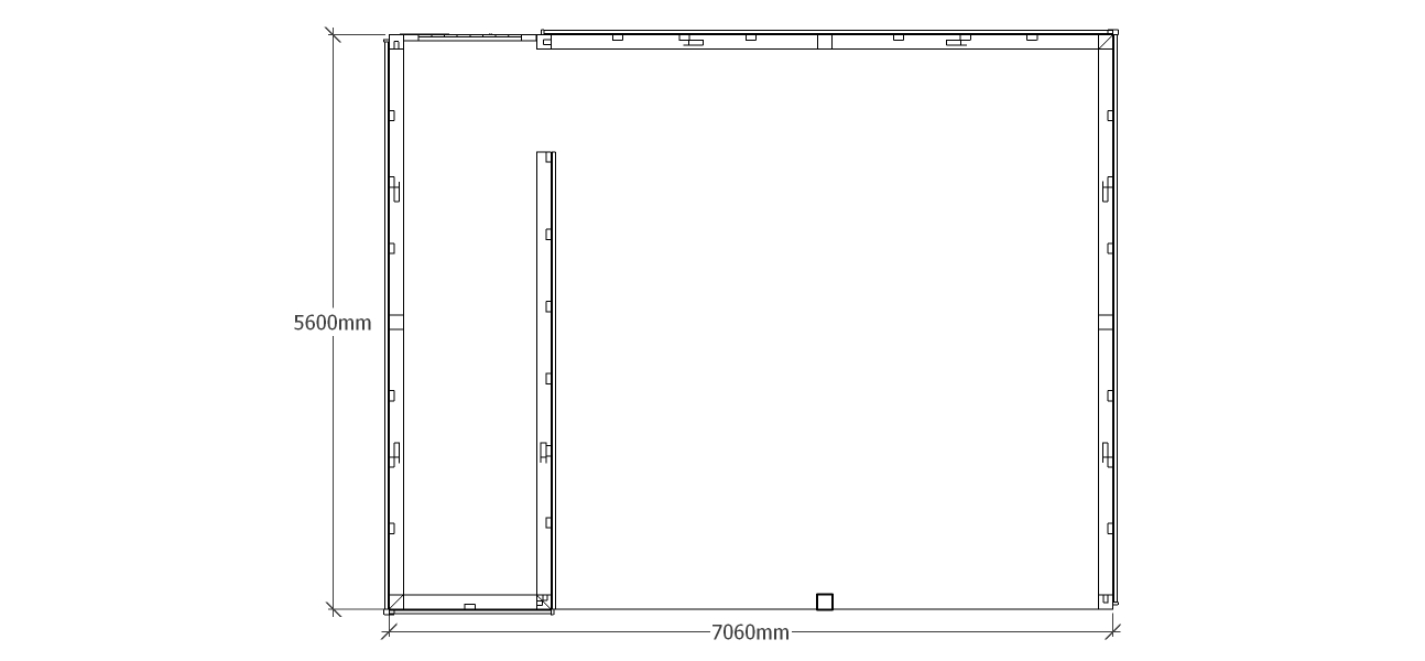
A 2 bay oak framed garage open at the front with an internal aisle on the left and a solid single door at the rear.
Dimensions
| G/F Area (sq m) | 39.54 |
| Total Area (sq m) | 39.54 |
| Length (m) | 7.06 |
| Depth (m) | 5.6 |
| Ridge Height (m) | 5.25 |
| Roof Pitch (deg) | 45 |
| Number of Bays | 2 |
| Location | West Sussex |




