Back to Home Leisure Buildings
Home Leisure Buildings - WS01620
This is a building we have previously constructed which you may want to use as a starting point for your design. All our buildings are designed and manufactured to your individual specifications.
Details
A 5 bay oak framed home leisure building. On the ground floor is 8 panes of full height glazing along the front wall to allow plenty of natural light into the area, there is also a single 2 light window on the rear and an internal staircase leading to the first floor. On the first floor are 2 large dormer windows at the front and 2 velux rooflights at the rear.
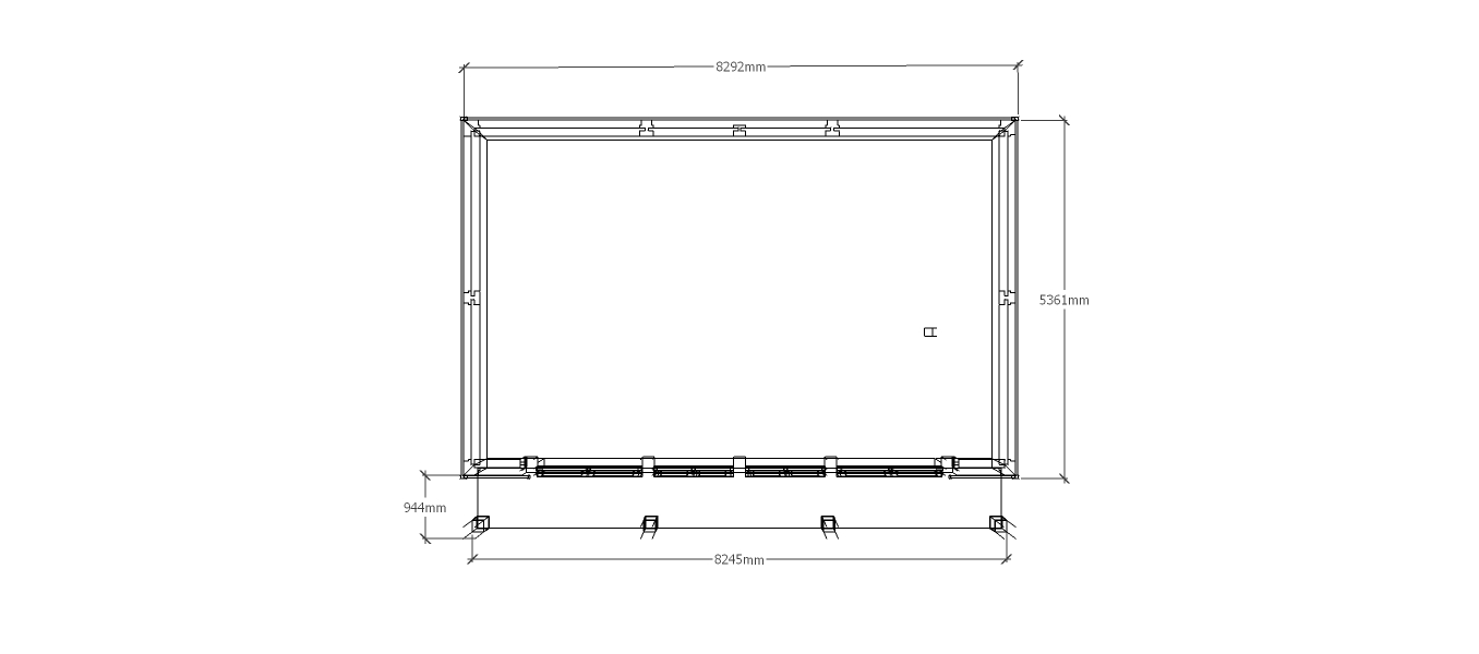
Dimensions
| G/F Area (sq m) | 43.99 |
| F/F Area (sq m) | 16.8 |
| Total Area (sq m) | 60.79 |
| Length (m) | 8.3 |
| Depth (m) | 5.3 |
| Ridge Height (m) | 6.3 |
| Roof Pitch (deg) | 45 |
| Number of Bays | 5 |
| Location | Leicestershire |




