Back to Three Bay Oak Garages with Upper Floors
Three Bay Oak Garages with Upper Floors - WS01602
This is a building we have previously constructed which you may want to use as a starting point for your design. All our buildings are designed and manufactured to your individual specifications.
Details
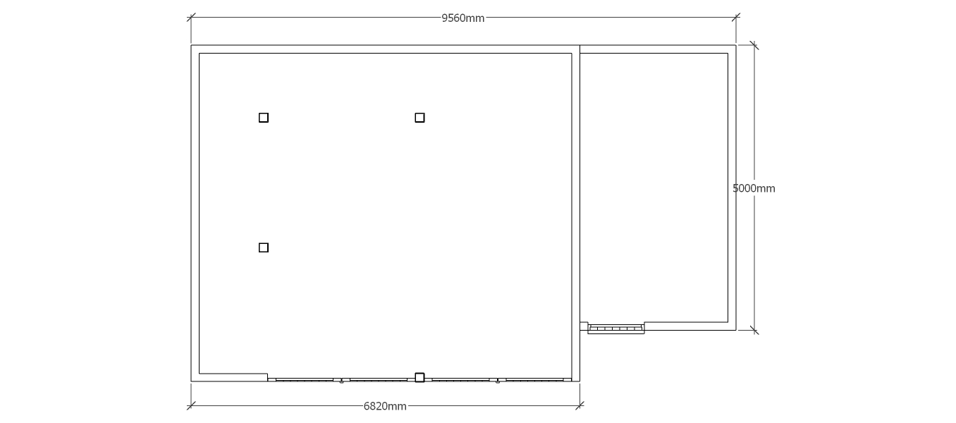
An oak frame garage and store with two enclosed garage bays and a third bay enclosed with access via a single personnel door and a window to the front.
Dimensions
| G/F Area (sq m) | 52 |
| Total Area (sq m) | 52 |
| Length (m) | 9.56 |
| Depth (m) | 5.6 |
| Roof Pitch (deg) | 40 |
| Number of Bays | 3 |




