Back to Three Bay Oak Garages
Three Bay Oak Garages - WS01571
This is a building we have previously constructed which you may want to use as a starting point for your design. All our buildings are designed and manufactured to your individual specifications.
Details
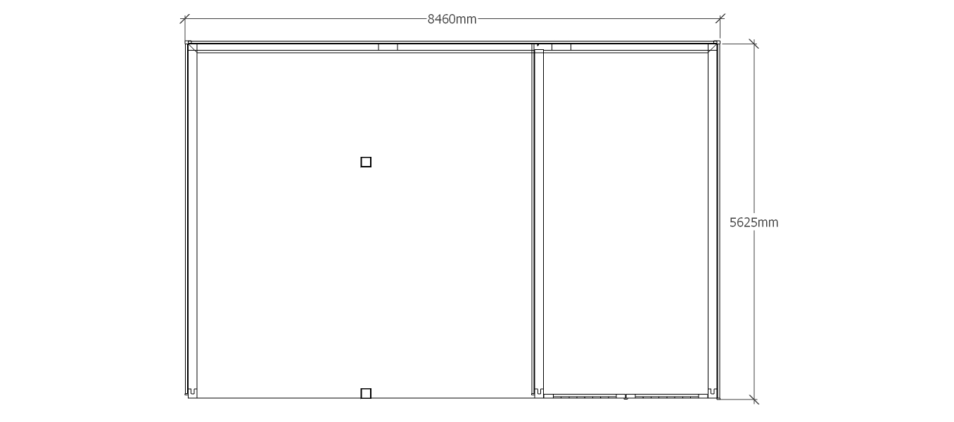
A 3 bay oak framed garage with 2 bays left open at the front while the other has iroko garage doors.
Dimensions
| G/F Area (sq m) | 47.38 |
| Total Area (sq m) | 47.38 |
| Length (m) | 8.46 |
| Depth (m) | 5.6 |
| Ridge Height (m) | 4 |
| Roof Pitch (deg) | 40 |
| Number of Bays | 3 |
| Location | Berkshire |




