Back to Three Bay Oak Garages

Three Bay Oak Garages - WS01562

This is a building we have previously constructed which you may want to use as a starting point for your design. All our buildings are designed and manufactured to your individual specifications.

A 3 bay oak framed garage that is open at the front.
Special Offer

Details

A 3 bay oak framed garage that is open at the front.

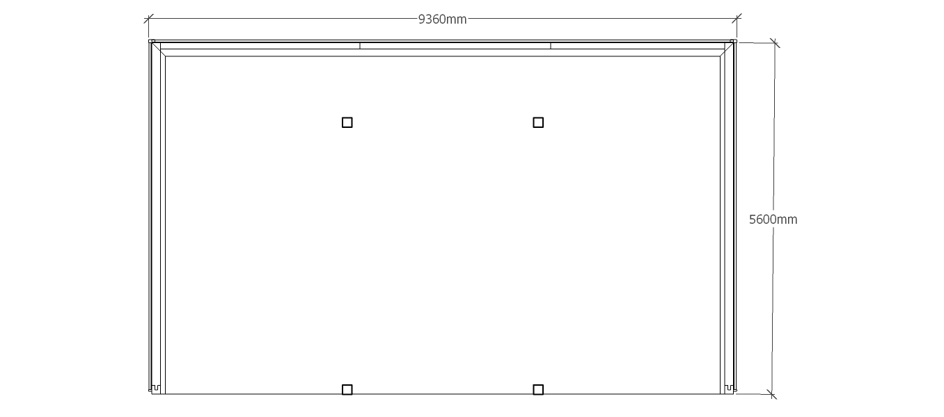
Dimensions

G/F Area (sq m) 89.86
Total Area (sq m) 89.86
Length (m) 9.36
Depth (m) 9.6
Ridge Height (m) 4.5
Roof Pitch (deg) 45
Number of Bays 3
Location Essex