Oak Framed Complexes - WS01528
This is a building we have previously constructed which you may want to use as a starting point for your design. All our buildings are designed and manufactured to your individual specifications.
Details
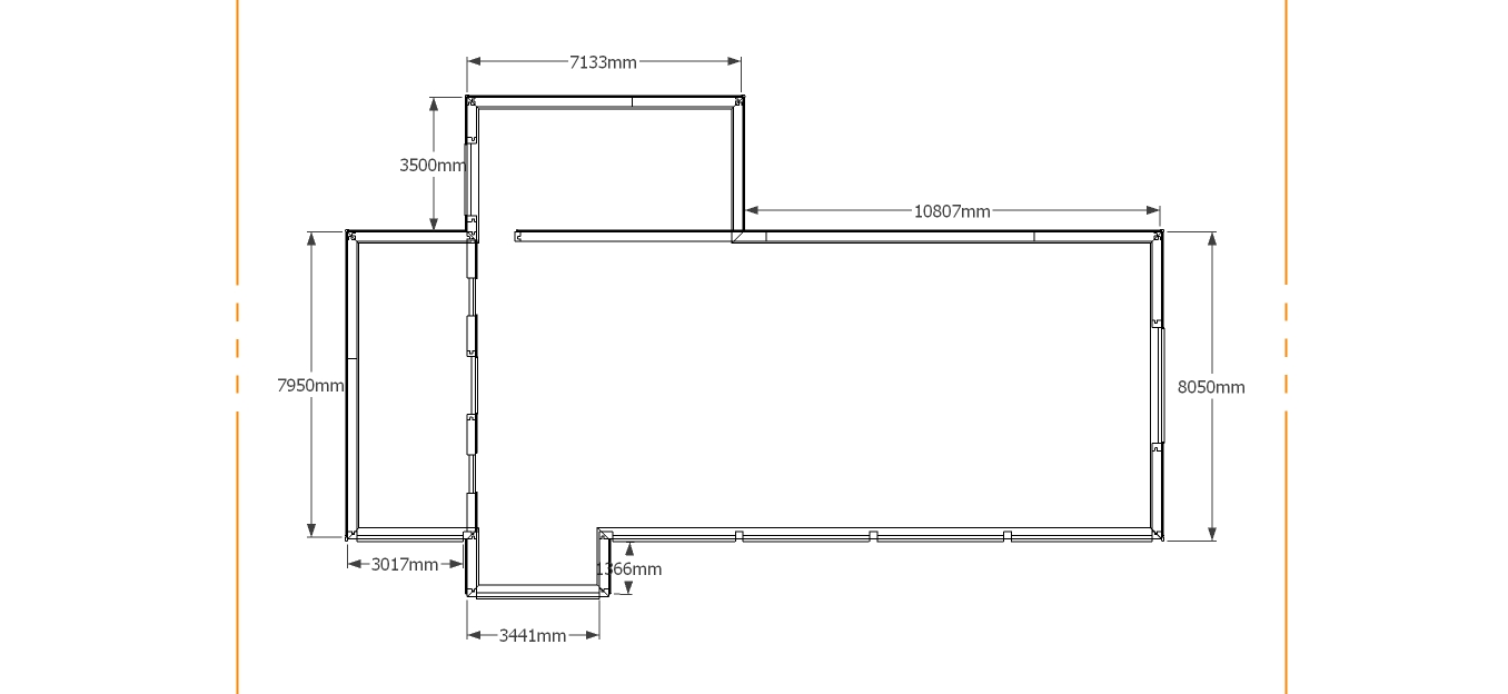
A ten bay oak frame complex made up of three seperate frames. The first frame is three bays in size with iroko garage doors on the left of the building and a mulion window on the right. The second frame of the building is made up of six bays, it has full height glazing along the front of five of the six bays while one is attached to the third frame. This frame also has a four light window and a three light window on the left and on the right is a four pane full height glazed window. The third and final frame is a single bay that has full height glazing along one wall.
Dimensions
| G/F Area (sq m) | 139.86 |
| Total Area (sq m) | 139.86 |
| Length (m) | 20.85 |
| Depth (m) | 12.9 |
| Ridge Height (m) | 3.95 |
| Roof Pitch (deg) | 20 |
| Number of Bays | 10 |
| Location | Surrey |





