Back to Something Different
Something Different - WS01526
This is a building we have previously constructed which you may want to use as a starting point for your design. All our buildings are designed and manufactured to your individual specifications.
Details
A single bay oak framed building with full height glazing on one wall and a steel finial on the top.
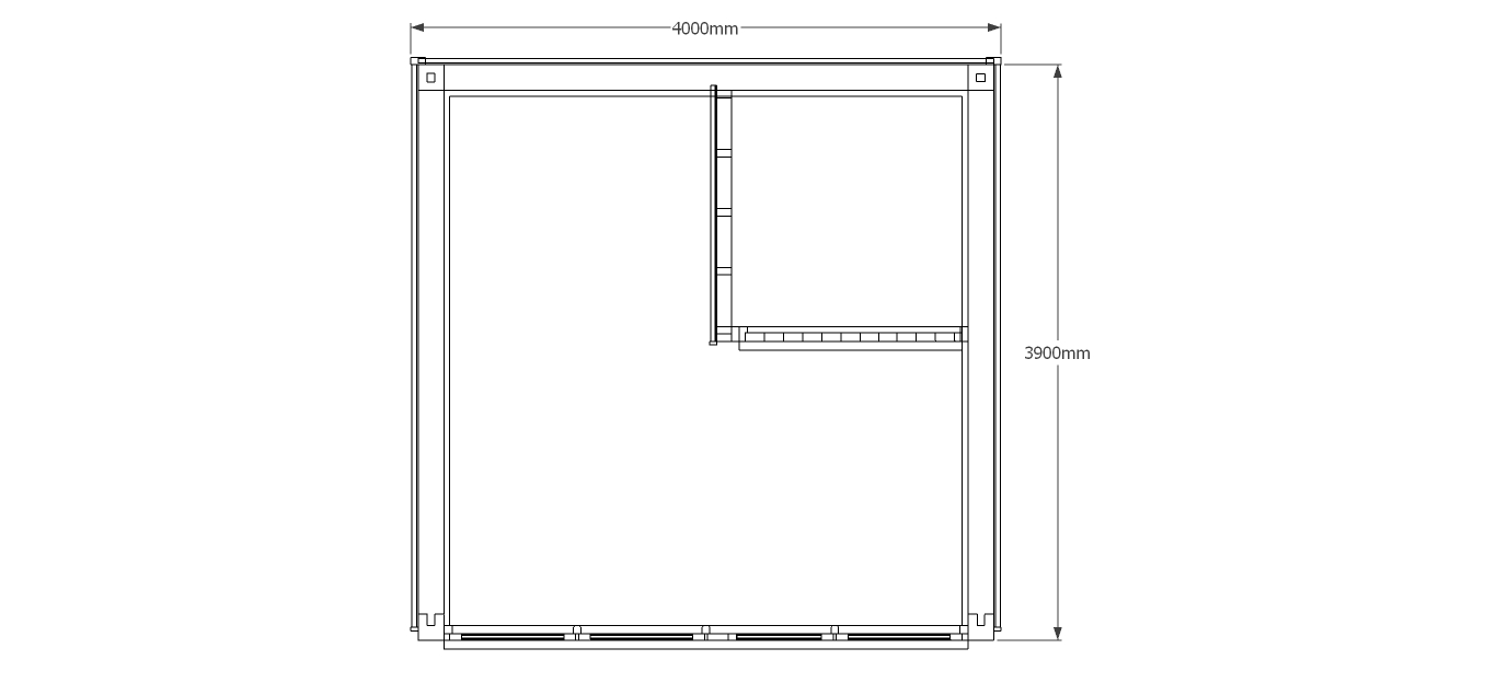
Dimensions
| G/F Area (sq m) | 15.6 |
| Total Area (sq m) | 15.6 |
| Length (m) | 4 |
| Depth (m) | 3.9 |
| Ridge Height (m) | 3.9 |
| Roof Pitch (deg) | 40 |
| Number of Bays | 1 |
| Location | Kent |




