Back to Three Bay Oak Garages
Three Bay Oak Garages - WS01516
This is a building we have previously constructed which you may want to use as a starting point for your design. All our buildings are designed and manufactured to your individual specifications.
Details
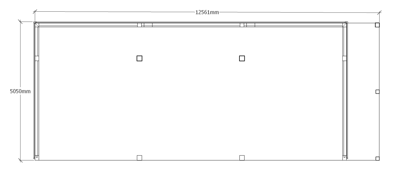
A three bay oak framed garage open at the front with an external aisle on the right of the building and two velux rooflights on the rear.
Dimensions
| G/F Area (sq m) | 62.5 |
| Total Area (sq m) | 62.5 |
| Length (m) | 12.5 |
| Depth (m) | 5 |
| Ridge Height (m) | 4.2 |
| Roof Pitch (deg) | 40 |
| Number of Bays | 3 |
| Location | East Sussex |




