Oak Framed Houses - WS01515
This is a building we have previously constructed which you may want to use as a starting point for your design. All our buildings are designed and manufactured to your individual specifications.
Details
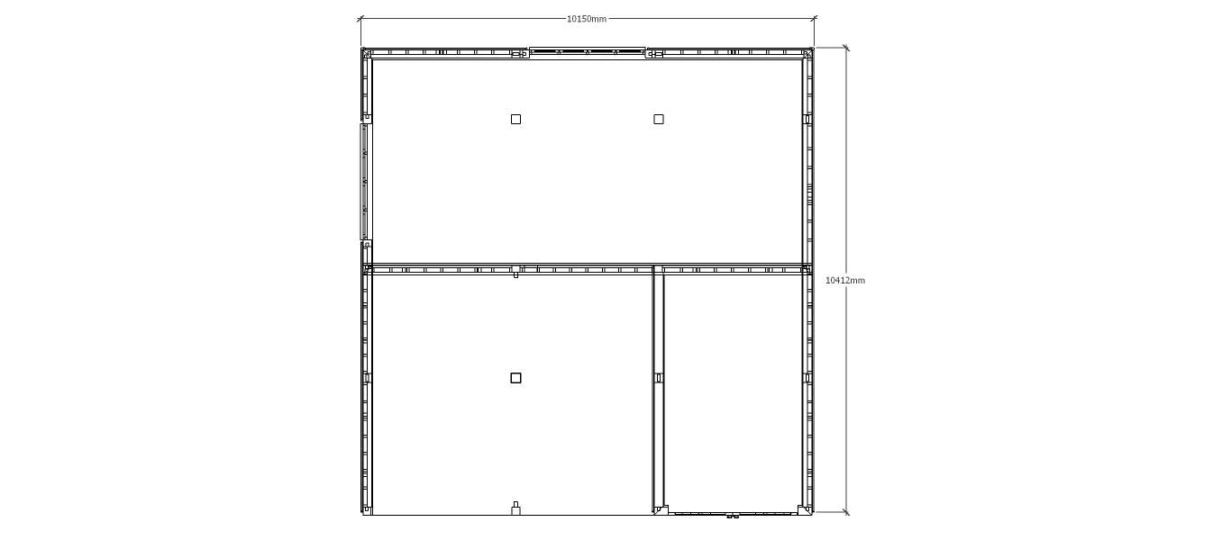
A 6 bay oak framed house on a split level. The ground floor has 3 bays at the front dedicated to a garage area, one of the bays has a pair of iroko garage doors at the front while the other two bays are left open. the ground floor of the left of the building has a three light window as well as four panes of full height glazing, the rear of the building also has full height glazed doors to allow access out of the rear of the building, these also allow lots of natural light into the building. The first floor has three dormer windows on the front of the building to provide light to the first floor as well as full height glazing on the left of the building.
Dimensions
| G/F Area (sq m) | 105.68 |
| F/F Area (sq m) | 67.9 |
| Total Area (sq m) | 173.58 |
| Length (m) | 10.15 |
| Depth (m) | 10.412 |
| Ridge Height (m) | 7.8 |
| Roof Pitch (deg) | 40 |
| Number of Bays | 6 |
| Location | Devon |




