Oak Framed Complexes - WS01502
This is a building we have previously constructed which you may want to use as a starting point for your design. All our buildings are designed and manufactured to your individual specifications.
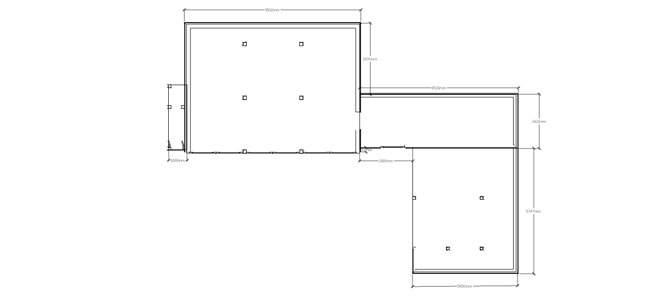
Details
A 7 bay oak frame complex made up of 3 frames. The first frame is a garage with an upper floor, there are three bays on the ground floor each with a pair of iroko garage doors at the front of the bay, on the left of the building is an external staircase leading to the upper floor. The upper floor is a storage space with two velux rooflights on the front as well as two on the rear and a 3 light window on the right. The second frame of this building is a link between the other two frames, it has a single solid iroko door on the front and two mullion windows on the rear as well as a rooflight above. each mullion window. The third and final frame is a two bay open ended garage with an internal aisle on the right.
Dimensions
| G/F Area (sq m) | 129.5 |
| F/F Area (sq m) | 28.2 |
| Total Area (sq m) | 157.7 |
| Length (m) | 19 |
| Depth (m) | 13.4 |
| Ridge Height (m) | 5.7 |
| Roof Pitch (deg) | 45 |
| Number of Bays | 7 |
| Location | Buckinghamshire |




