Back to Three Bay Oak Garages
Three Bay Oak Garages - WS01480
This is a building we have previously constructed which you may want to use as a starting point for your design. All our buildings are designed and manufactured to your individual specifications.
Details
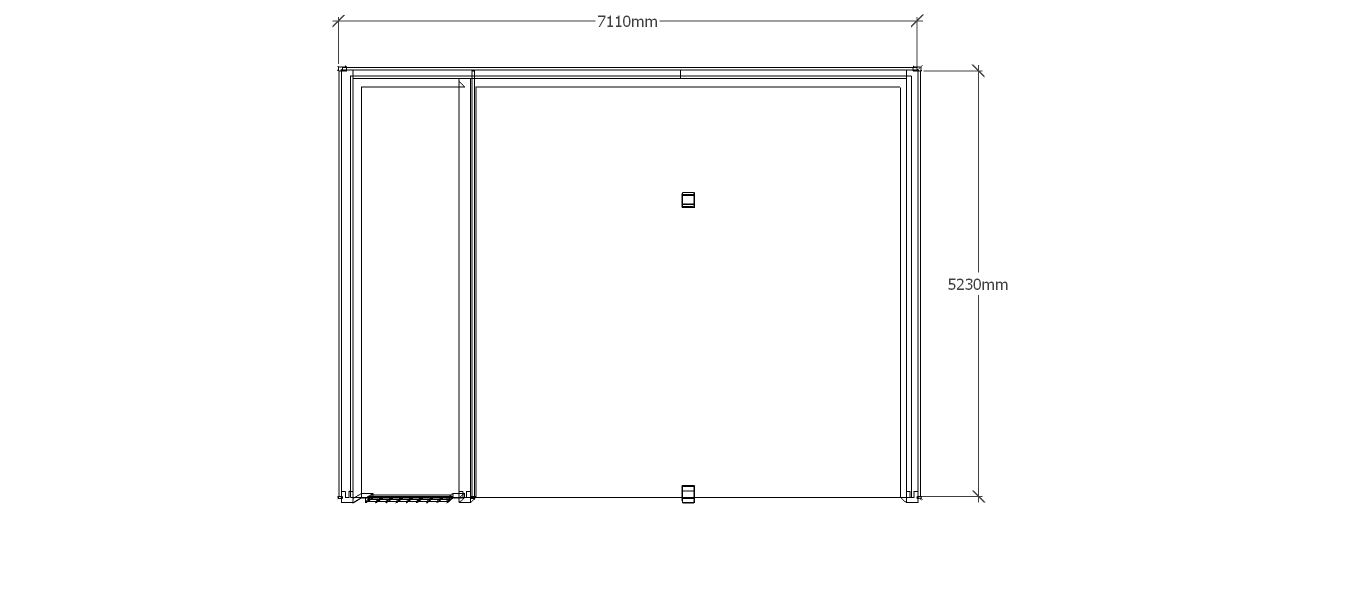
A three bay oak framed garage with two bays open ended at the front and another with an internal partition and a solid single door on the front of the bay.
Dimensions
| G/F Area (sq m) | 36.92 |
| Total Area (sq m) | 36.92 |
| Length (m) | 7.1 |
| Depth (m) | 5.2 |
| Ridge Height (m) | 3.98 |
| Roof Pitch (deg) | 40 |
| Number of Bays | 3 |
| Location | Kent |




