Back to Four Bays And Upwards with Upper Floors
Four Bays And Upwards with Upper Floors - WS01455
This is a building we have previously constructed which you may want to use as a starting point for your design. All our buildings are designed and manufactured to your individual specifications.
Details
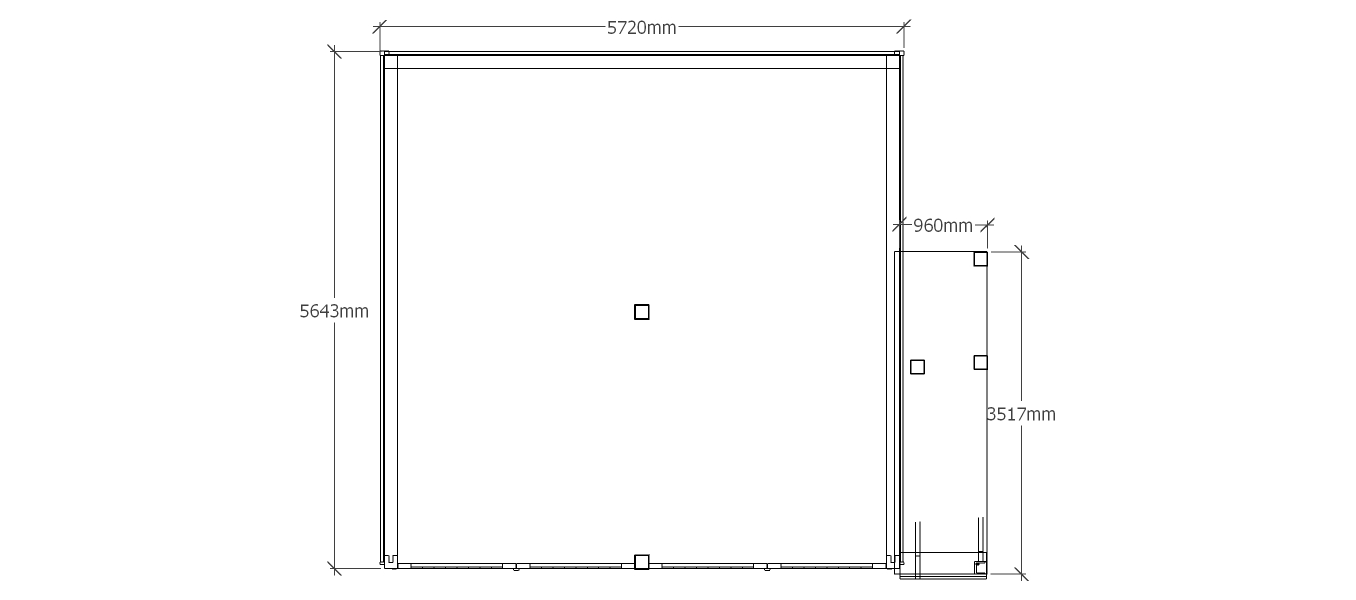
A 4 bay oak framed garage with the bays on the ground floor housed by garage doors to the front of the building. On the right hand side of this building there is an external staircase allowing access to the first floor of the building, on the first floor there is a single door partly glazed on the right hand side and on the left hand side of the building there is a 1 light window to allow light into the upper floor.
Dimensions
| G/F Area (sq m) | 32.28 |
| F/F Area (sq m) | 14 |
| Total Area (sq m) | 46.28 |
| Length (m) | 5.72 |
| Depth (m) | 5.643 |
| Ridge Height (m) | 5.4 |
| Roof Pitch (deg) | 45 |
| Number of Bays | 4 |
| Location | Gloustershire |




