Oak Framed Complexes - WS01451
This is a building we have previously constructed which you may want to use as a starting point for your design. All our buildings are designed and manufactured to your individual specifications.
Details
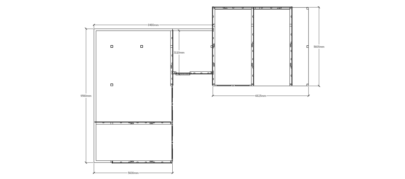
A six bay oak fram complex with three frames. the first is a 3 bay garage area with 2 bays enclosed by iroko garage doors while the third bay creates room for storage. The second frame of this building connects the two other frames, it is a single bay with a single door and mullion style window to the front . The third frame is another garage space, this time with two bays, one bay is enclosed by a set of garage doors and an internal partition between the bays while the other has an open end at the front and has an outshot attached on the right hand side
Dimensions
| G/F Area (sq m) | 100.7 |
| Total Area (sq m) | 100.7 |
| Length (m) | 15.28 |
| Depth (m) | 14.06 |
| Ridge Height (m) | 4.27 |
| Roof Pitch (deg) | 40 |
| Number of Bays | 6 |
| Location | Kent |




