Back to Two Bay Oak Garages with Upper Floors
Two Bay Oak Garages with Upper Floors - WS01427
This is a building we have previously constructed which you may want to use as a starting point for your design. All our buildings are designed and manufactured to your individual specifications.
Details
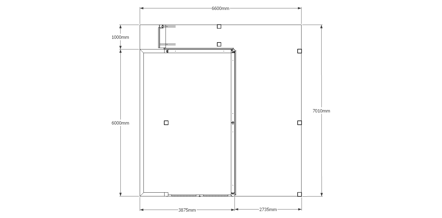
An oak framed garage with a open bay and a closed bay with garage doors. The ground floor also has an external staircase leading to the first floor. On the first floor there is a window to the front of the building and 2 roof lights to allow the natural light in the room.
Dimensions
| G/F Area (sq m) | 46.2 |
| F/F Area (sq m) | 27.6 |
| Total Area (sq m) | 73.8 |
| Length (m) | 7 |
| Depth (m) | 6.6 |
| Ridge Height (m) | 5.215 |
| Roof Pitch (deg) | 45 |
| Number of Bays | 2 |
| Location | Bedfordshire |



