Back to Four Bays And Upwards with Upper Floors
Four Bays And Upwards with Upper Floors - WS01421
This is a building we have previously constructed which you may want to use as a starting point for your design. All our buildings are designed and manufactured to your individual specifications.
Details
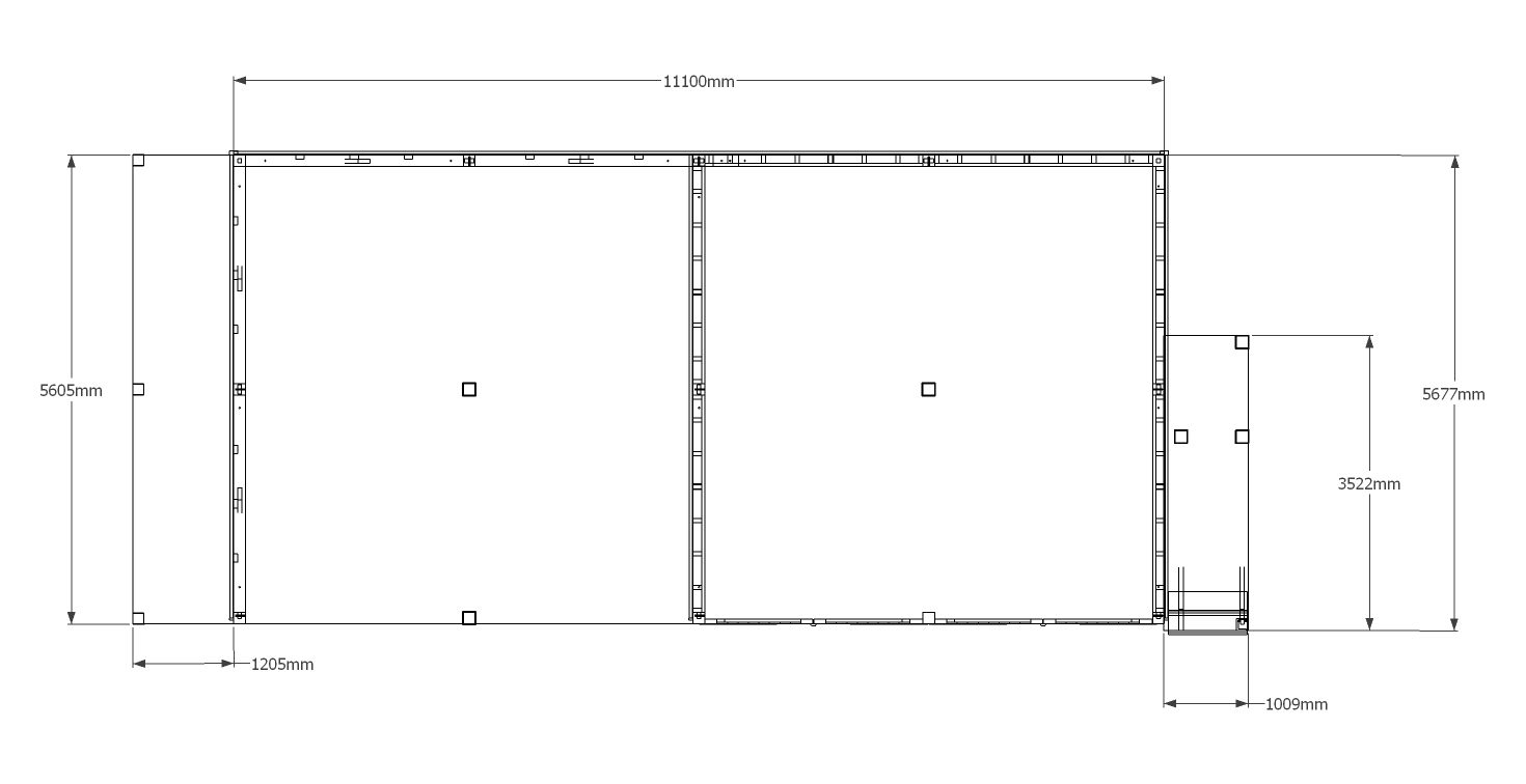
A 4 bay oak framed garage with upper floor. The ground floor has 2 bays open at the front and 2 that are enclosed with a pair of garage doors on the front of each, on the left is an external aisle and on the right is an external oak frame staircase leading to the first floor. On the first floor is a half glazed single door on the right and on the front are 2 dormers each containing a 2 light window.
Dimensions
| G/F Area (sq m) | 65.68 |
| F/F Area (sq m) | 14.56 |
| Total Area (sq m) | 80.24 |
| Length (m) | 12 |
| Depth (m) | 5.6 |
| Ridge Height (m) | 5.25 |
| Roof Pitch (deg) | 45 |
| Number of Bays | 8 |
| Location | Kent |



