Back to Three Bay Oak Garages with Upper Floors
Three Bay Oak Garages with Upper Floors - WS01420
This is a building we have previously constructed which you may want to use as a starting point for your design. All our buildings are designed and manufactured to your individual specifications.
Details
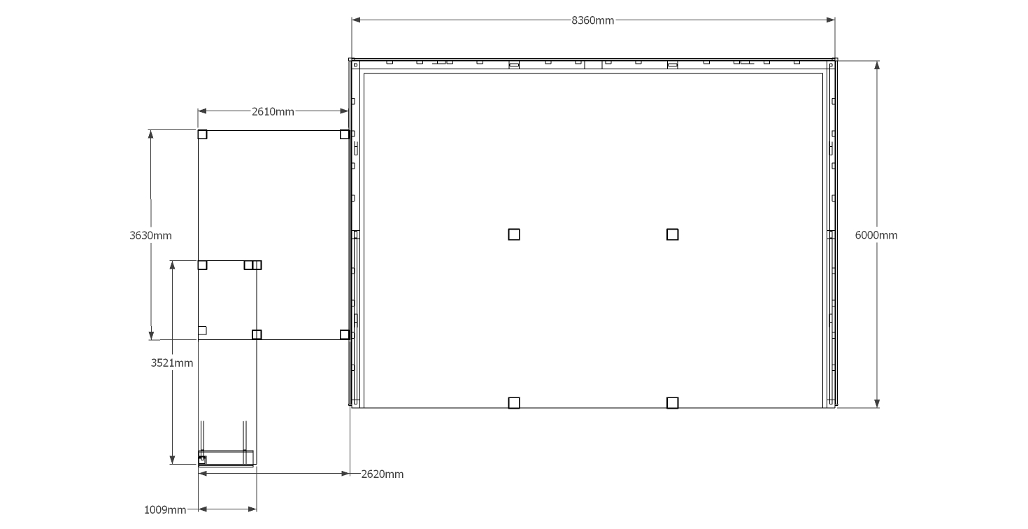
A 3 bay oak framed garage with upper floor. On the ground floor all open bays at the front as well as an external staircase on the left with balcony, leading to the first floor. On the first floor there is a pair of full height glazed garden room doors alongside glazing in the gable end of the building and 2 rooflights on the front of the building to allow the natural light to enter the room.
Dimensions
| G/F Area (sq m) | 60.83 |
| F/F Area (sq m) | 41.8 |
| Total Area (sq m) | 102.63 |
| Length (m) | 10.97 |
| Depth (m) | 7.2 |
| Ridge Height (m) | 5.49 |
| Roof Pitch (deg) | 45 |
| Number of Bays | 3 |
| Location | Somerset |




