Commercial Buildings - WS01405
Also in: Oak Pergola
This is a building we have previously constructed which you may want to use as a starting point for your design. All our buildings are designed and manufactured to your individual specifications.
Details
A 4 bay comercial building made up of 2 frames. The first frame has 3 bays on the ground floor and it also has an upper floor. The ground floor bays are all open at the front with a brick wall to the rear, on the right of the building is a large external oak staircase leading to the first floor. On the first floor is a pergola on the right above a half glazed door. The second frame makes up a single bay with brick walls on both the right and the rear. The frame is monopitch and has a solid single door at the front.
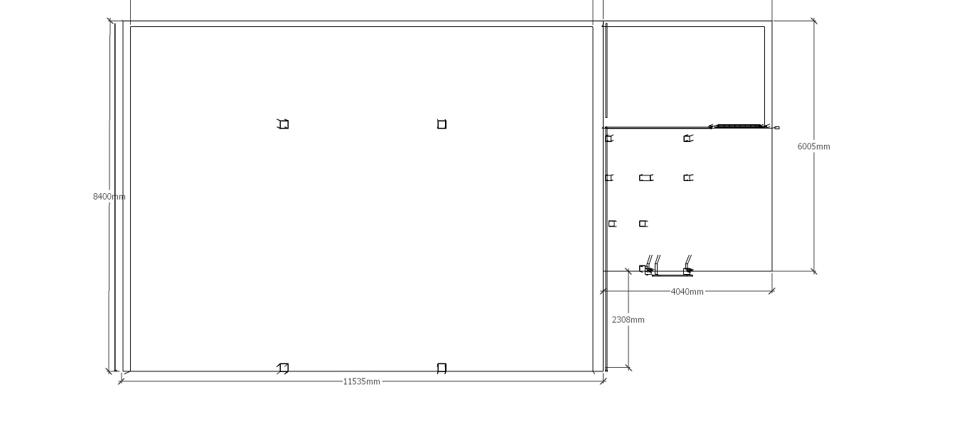
Dimensions
| G/F Area (sq m) | 126.6 |
| Total Area (sq m) | 126.6 |
| Length (m) | 15.6 |
| Depth (m) | 8.4 |
| Ridge Height (m) | 6.5 |
| Roof Pitch (deg) | 45 |
| Number of Bays | 4 |
| Location | Hertfordshire |
| Ridge Height (m) | Monopitch |




