Back to Three Bay Oak Garages
Three Bay Oak Garages - WS01400
This is a building we have previously constructed which you may want to use as a starting point for your design. All our buildings are designed and manufactured to your individual specifications.
Details
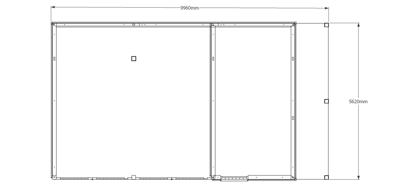
A 3 bay oak frame garage and workshop with 2 bays enclosed via a pair of garage doors while the other bay is enclosed with a solid single door, the front of this building also has a mullion window. The right hand side of the building has an external aisle / log store.
Dimensions
| G/F Area (sq m) | 55.4 |
| Total Area (sq m) | 55.4 |
| Length (m) | 9.9 |
| Depth (m) | 5.6 |
| Ridge Height (m) | 4.3 |
| Roof Pitch (deg) | 40 |
| Number of Bays | 3 |
| Location | Buckinghamshire |


