Back to Four Bays and Upwards
Four Bays and Upwards - WS01394
This is a building we have previously constructed which you may want to use as a starting point for your design. All our buildings are designed and manufactured to your individual specifications.
Details
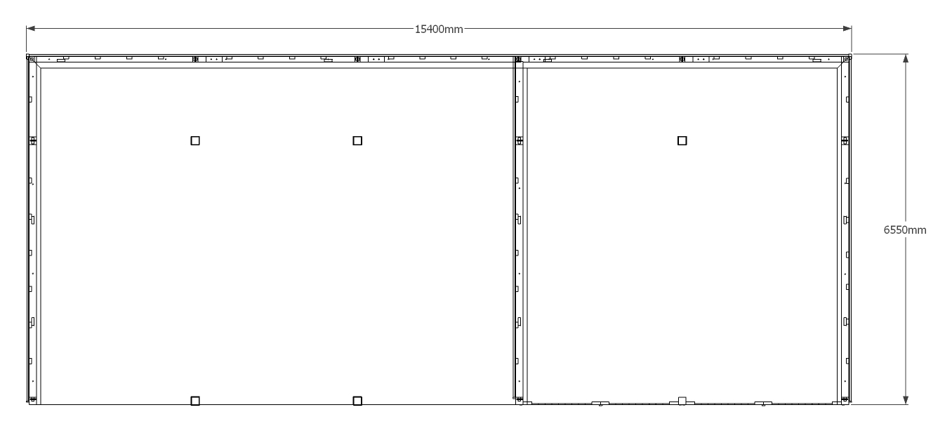
A 5 bay oak frame garage with 3 bays open at the front while the other 2 bays are enclosed with iroko garage doors, the right of the building have a 4light window and the roof is tiled with pantines.
Dimensions
| G/F Area (sq m) | 100.1 |
| Total Area (sq m) | 100.1 |
| Length (m) | 15.4 |
| Depth (m) | 6.5 |
| Ridge Height (m) | 4.5 |
| Roof Pitch (deg) | 40 |
| Number of Bays | 5 |
| Location | Norfolk |



