Back to Two Bay Oak Garages
Two Bay Oak Garages - WS01381
This is a building we have previously constructed which you may want to use as a starting point for your design. All our buildings are designed and manufactured to your individual specifications.
Details
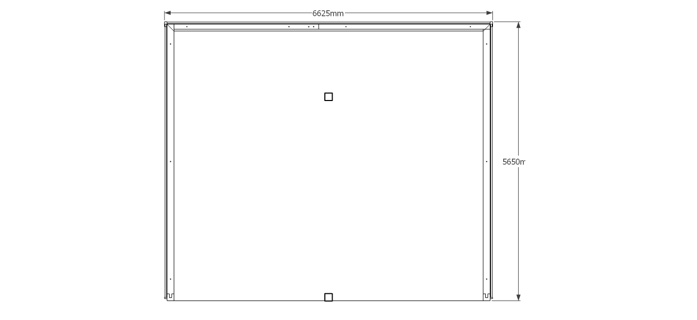
A 2 bay oak frame garage with an enclosed aisle at the rear.
Dimensions
| G/F Area (sq m) | 36.96 |
| Total Area (sq m) | 36.96 |
| Length (m) | 6.6 |
| Depth (m) | 5.6 |
| Ridge Height (m) | 4.2 |
| Roof Pitch (deg) | 40 |
| Number of Bays | 2 |
| Location | Hertfordshire |



