Back to Two Bay Oak Garages
Two Bay Oak Garages - WS01350
This is a building we have previously constructed which you may want to use as a starting point for your design. All our buildings are designed and manufactured to your individual specifications.
Details
A traditional 2 bay oak frame garage with barn doors.
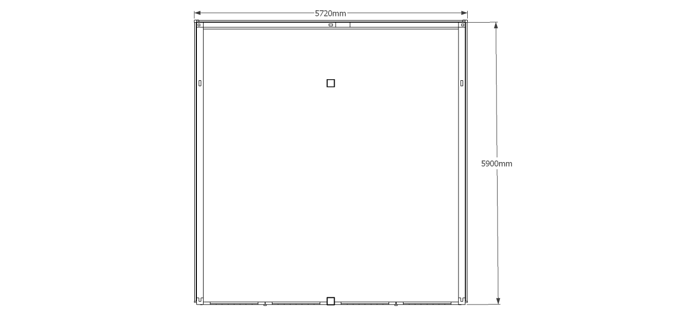
Dimensions
| G/F Area (sq m) | 33.63 |
| Total Area (sq m) | 33.63 |
| Length (m) | 5.9 |
| Depth (m) | 5.7 |
| Ridge Height (m) | 4.4 |
| Roof Pitch (deg) | 40 |
| Number of Bays | 2 |
| Location | Surrey |



