Back to Four Bays And Upwards with Upper Floors
Four Bays And Upwards with Upper Floors - WS01337
This is a building we have previously constructed which you may want to use as a starting point for your design. All our buildings are designed and manufactured to your individual specifications.
Details
A oak framed building with a 2 bay open garage and workshop. The roof of the garage area is thatched while the rest on the building has a clay tile roof, the front on the building has a normal door at the front next to a small glazed window and a logstore to the right.
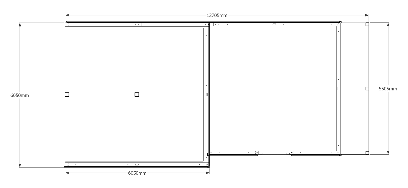
Dimensions
| G/F Area (sq m) | 73.2 |
| F/F Area (sq m) | 15 |
| Total Area (sq m) | 88.2 |
| Length (m) | 12.7 |
| Depth (m) | 6.05 |
| Ridge Height (m) | 5.1 |
| Roof Pitch (deg) | 45 |
| Number of Bays | 5 |
| Location | Belgium |




