Back to Something Different
Something Different - WS01336
This is a building we have previously constructed which you may want to use as a starting point for your design. All our buildings are designed and manufactured to your individual specifications.
Details
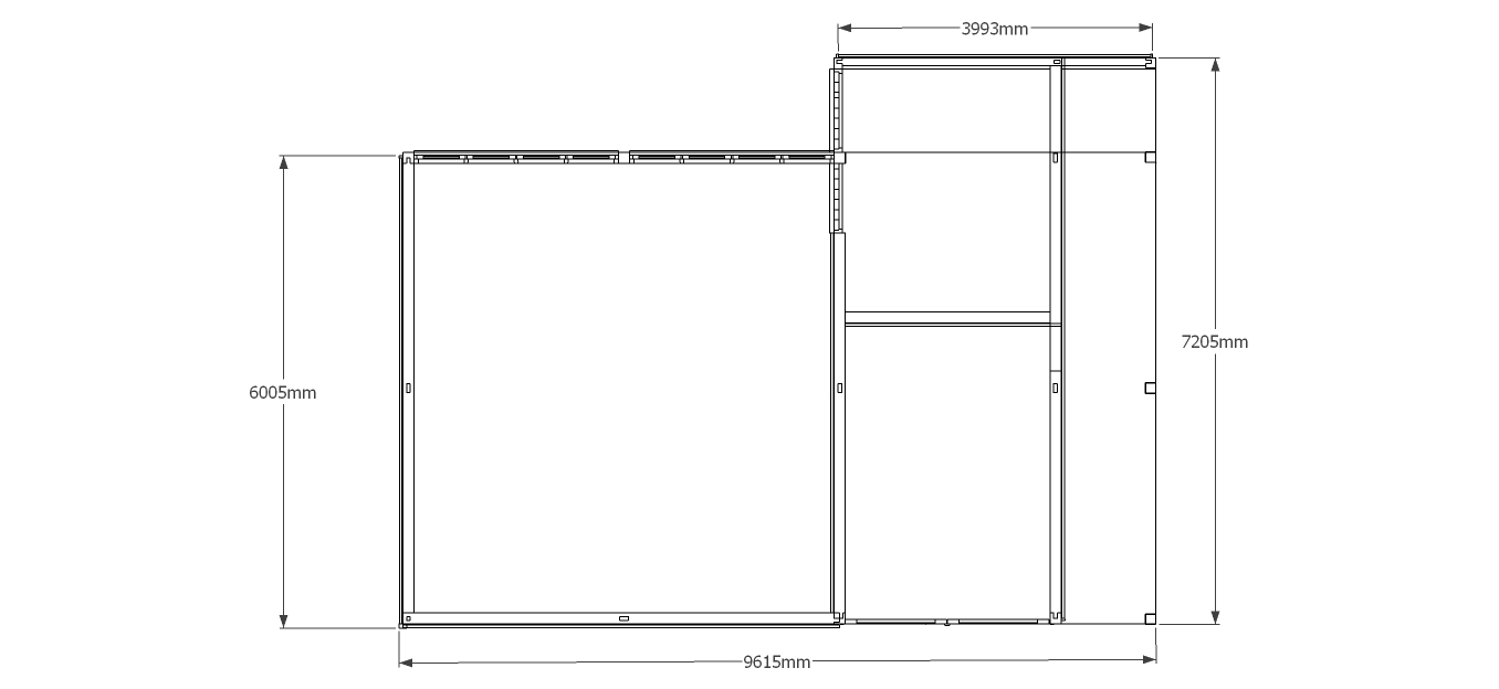
An oak frame garden room with garage and storage space. barn doors at the front, to the right there is an aisle on the side. The other side of the building has full height glazing down one side.
Dimensions
| G/F Area (sq m) | 62.51 |
| Total Area (sq m) | 62.51 |
| Length (m) | 9.6 |
| Depth (m) | 7.2 |
| Ridge Height (m) | 4.95 |
| Roof Pitch (deg) | 40 |
| Number of Bays | 3 |
| Location | Belgium |




