Back to Four Bays And Upwards with Upper Floors
Four Bays And Upwards with Upper Floors - WS01334
This is a building we have previously constructed which you may want to use as a starting point for your design. All our buildings are designed and manufactured to your individual specifications.
Details
A oak frame garage with a parking bays and a workshop. As well as this there is an external staircase leading to the upper floor in which there is 2 dormer windows.
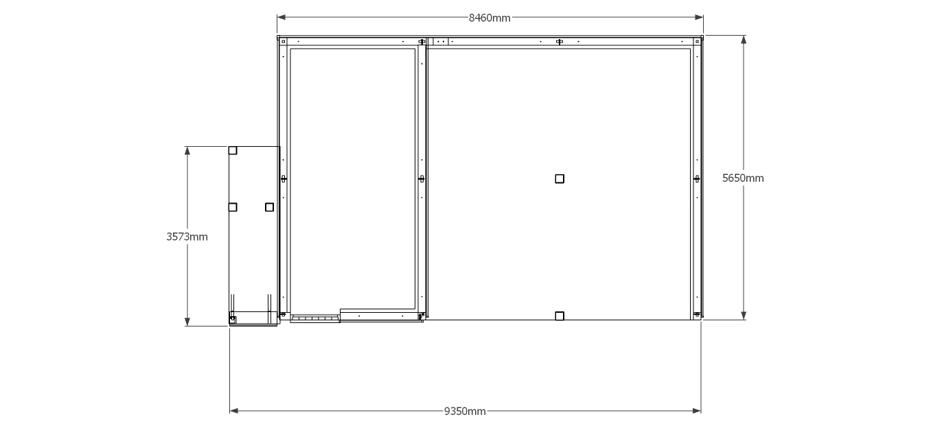
Dimensions
| G/F Area (sq m) | 50.98 |
| F/F Area (sq m) | 20.5 |
| Total Area (sq m) | 71.48 |
| Length (m) | 9.35 |
| Depth (m) | 5.65 |
| Ridge Height (m) | 5.24 |
| Roof Pitch (deg) | 45 |
| Number of Bays | 4 |
| Location | East Sussex |




