Back to Four Bays And Upwards with Upper Floors
Four Bays And Upwards with Upper Floors - WS01332
This is a building we have previously constructed which you may want to use as a starting point for your design. All our buildings are designed and manufactured to your individual specifications.
Details
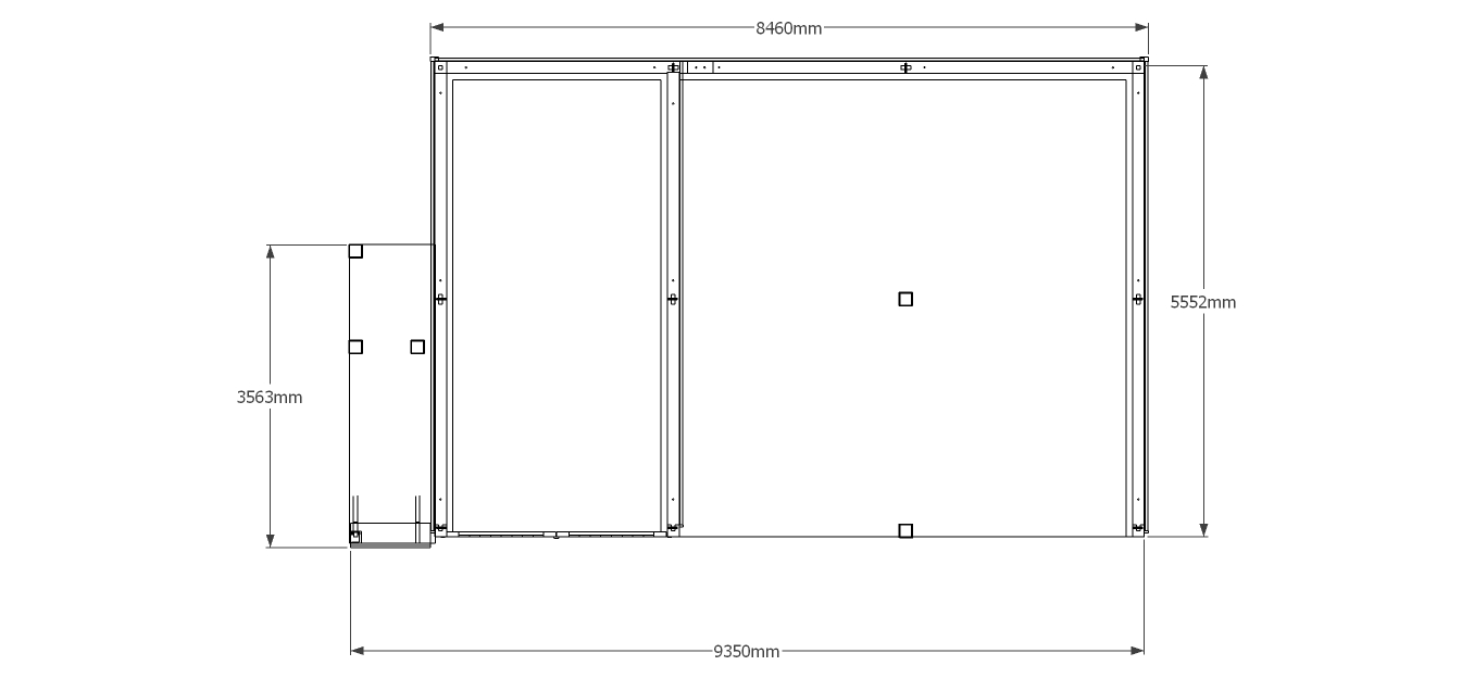
An oak framed garage with 2 open ended bays as well as another bay with barn doors. There is an external staircase leading to the first floor, this area includes 3 dormer windows at the front of the building.
Dimensions
| G/F Area (sq m) | 50.17 |
| F/F Area (sq m) | 21.58 |
| Total Area (sq m) | 71.75 |
| Length (m) | 9.3 |
| Depth (m) | 5.5 |
| Ridge Height (m) | 5.25 |
| Roof Pitch (deg) | 45 |
| Number of Bays | 4 |
| Location | Kent |



