Back to Two Bay Oak Garages with Upper Floors
Two Bay Oak Garages with Upper Floors - WS01330
This is a building we have previously constructed which you may want to use as a starting point for your design. All our buildings are designed and manufactured to your individual specifications.
Details
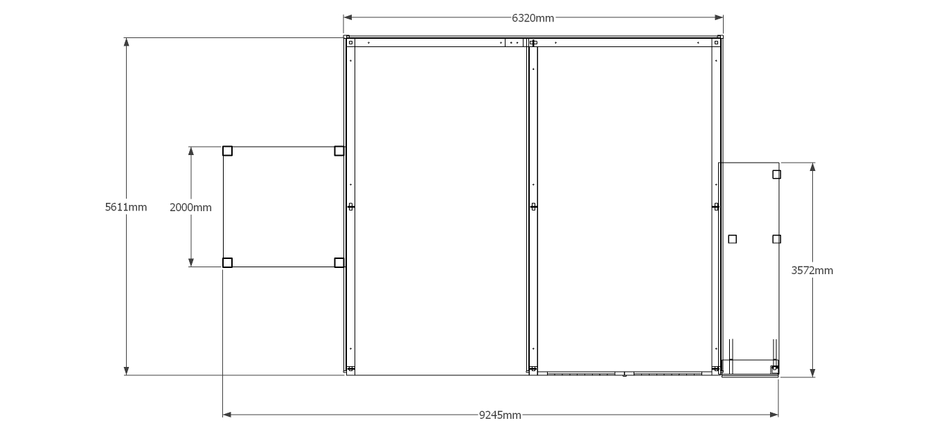
A 2 storey oak framed garage with 1 open ended bay and another bay with barn doors, beside this is an external staircase with canopy to the first floor. On the first floor there is a 2 metre by 2 metre balcony area through full height glazed doors. The first flor of this building also has 4 rooflights to allow the natural light to enter the room.
Dimensions
| G/F Area (sq m) | 42.31 |
| F/F Area (sq m) | 20.32 |
| Total Area (sq m) | 62.63 |
| Length (m) | 9.25 |
| Depth (m) | 5.6 |
| Ridge Height (m) | 5.56 |
| Roof Pitch (deg) | 45 |
| Number of Bays | 2 |
| Location | Norfolk |



