Back to Oak Framed Extensions
Oak Framed Extensions - WS01328
Also in: Oak lean to
This is a building we have previously constructed which you may want to use as a starting point for your design. All our buildings are designed and manufactured to your individual specifications.
Details
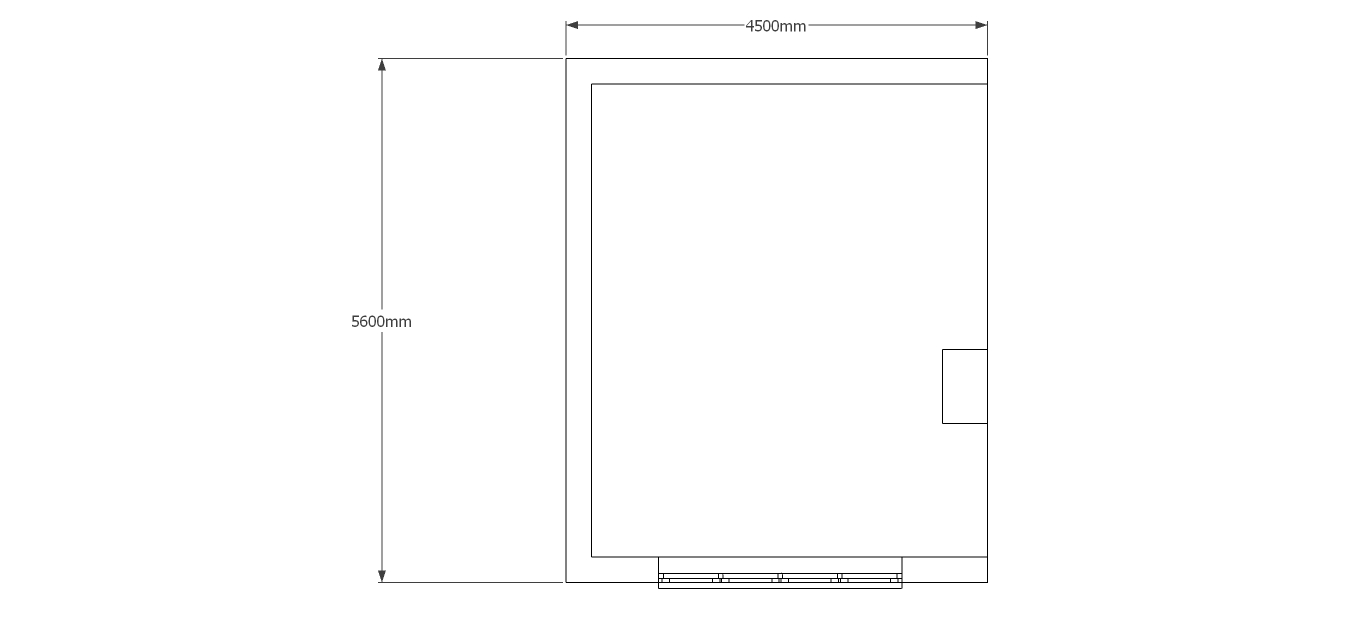
An oak frame home extension with full height glazing on one side and 2 smaller windows on another, this extension also contains a chimney
Dimensions
| G/F Area (sq m) | 25.2 |
| Total Area (sq m) | 25.2 |
| Length (m) | 5.6 |
| Depth (m) | 4.5 |
| Ridge Height (m) | 5.3 |
| Roof Pitch (deg) | 45 |
| Number of Bays | 1 |
| Location | Surrey |




