Back to Oak Framed Complexes
Oak Framed Complexes - WS01319
This is a building we have previously constructed which you may want to use as a starting point for your design. All our buildings are designed and manufactured to your individual specifications.
Details
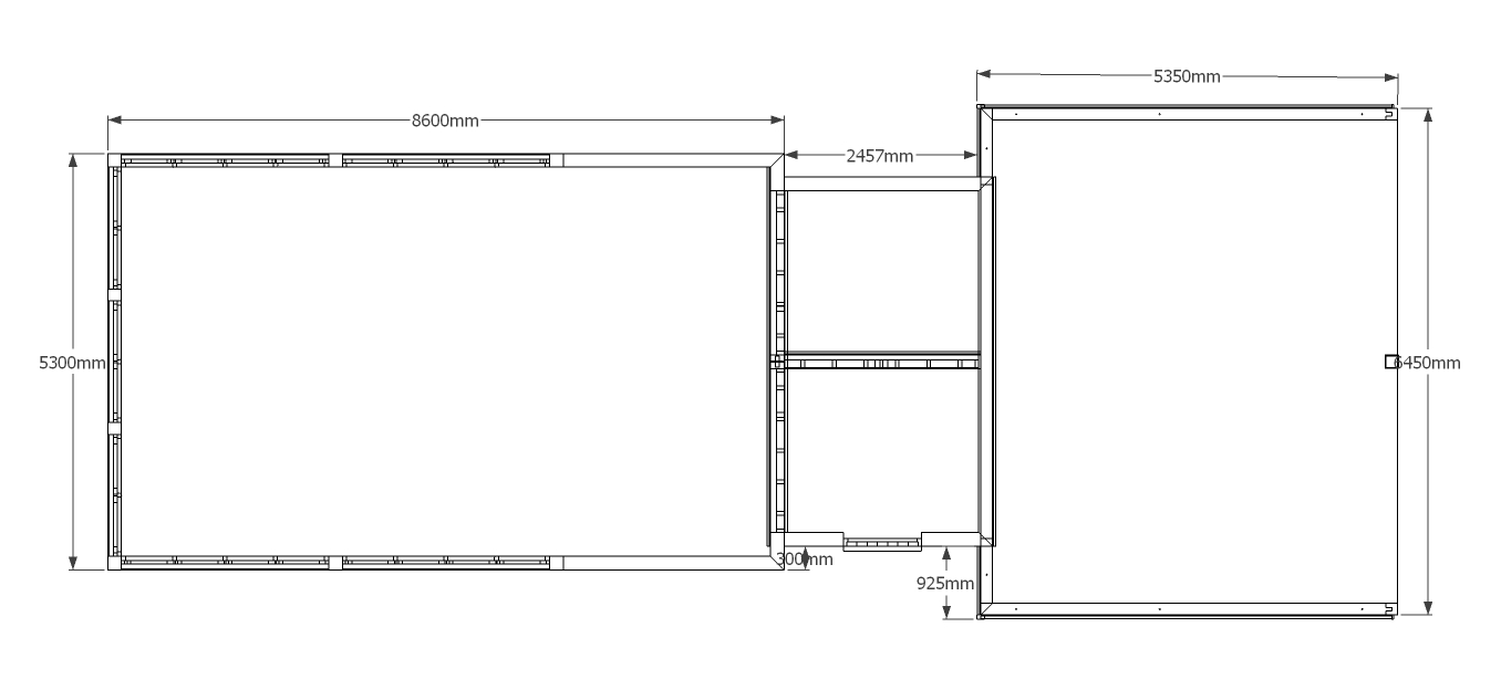
An oak frame building with a 2 bay open ended garage on one side of the building, there are also 2 small windows on the side of the garage. On the other side of the building there is a room with full height glazing along 3 of the walls to allow plent of natural light to fill the room.
Dimensions
| G/F Area (sq m) | 91.63 |
| Total Area (sq m) | 91.63 |
| Length (m) | 16.4 |
| Depth (m) | 6.45 |
| Ridge Height (m) | 4.53 |
| Roof Pitch (deg) | 40 |
| Number of Bays | 7 |
| Location | Hertfordshire |




