Back to Home Leisure Buildings
Home Leisure Buildings - WS01266
This is a building we have previously constructed which you may want to use as a starting point for your design. All our buildings are designed and manufactured to your individual specifications.
Details
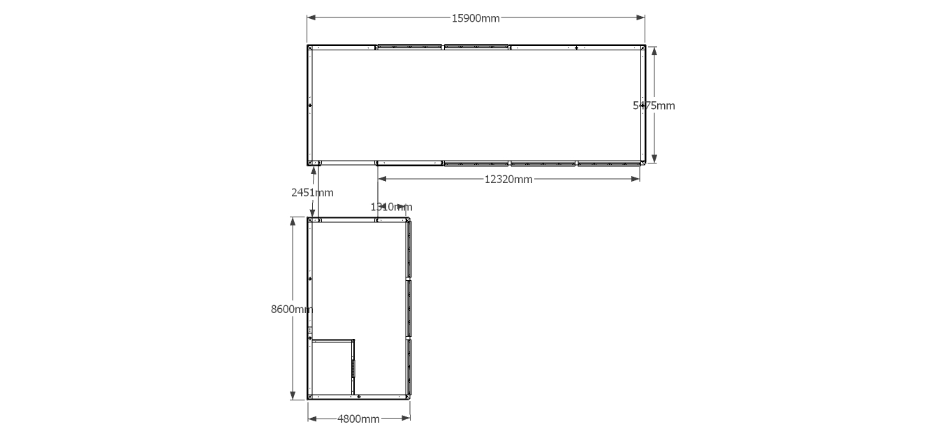
An L shaped oak framed garden room complex. Buildings connect in corner with a open corridor. Both buildings have full height glazing.
Dimensions
| G/F Area (sq m) | 134.5 |
| Total Area (sq m) | 134.5 |
| Length (m) | 15.9 |
| Depth (m) | 16.5 |
| Ridge Height (m) | 4.8 |
| Roof Pitch (deg) | 40 |
| Number of Bays | 10 |
| Location | Buckinghamshire |




