Back to Four Bays and Upwards

Four Bays and Upwards - WS01264

This is a building we have previously constructed which you may want to use as a starting point for your design. All our buildings are designed and manufactured to your individual specifications.

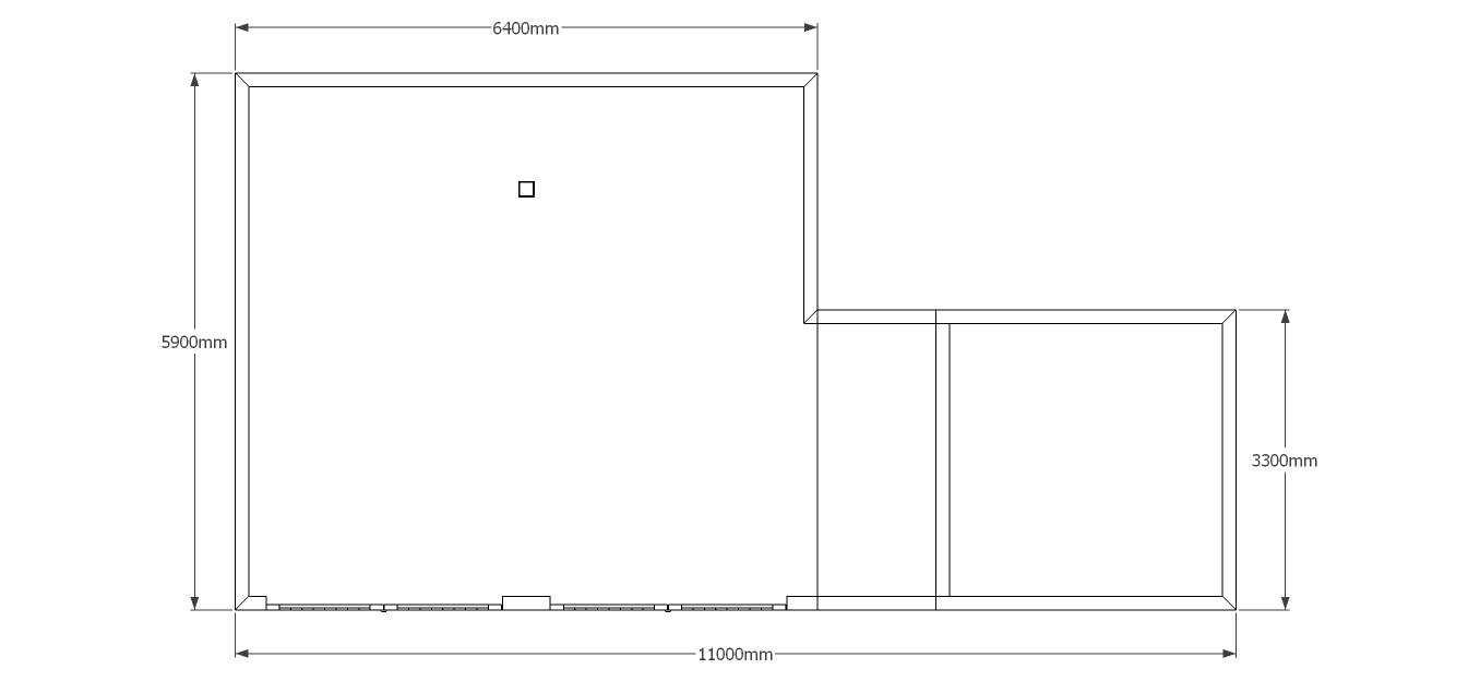
An oak framed garage with two bays for parking enclosed by two sets of barn doors. There is a storage space connected to the garage accesible both inside and out.
Special Offer

Details

An oak framed garage with two bays for parking enclosed by two sets of barn doors. There is a storage space connected to the garage accesible both inside and out.

Dimensions

G/F Area (sq m) 52.9
Total Area (sq m) 52.9
Length (m) 11
Depth (m) 5.9
Ridge Height (m) 5
Roof Pitch (deg) 42
Number of Bays 4
Location East Sussex