Back to Four Bays and Upwards
Four Bays and Upwards - WS01256
This is a building we have previously constructed which you may want to use as a starting point for your design. All our buildings are designed and manufactured to your individual specifications.
Details
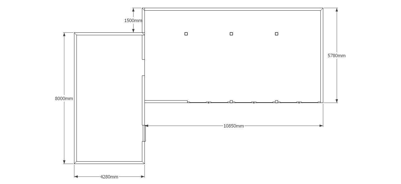
An L shaped oak framed garage with three bays enclosed by a set of barn doors each and an attachted studio space.
Dimensions
| G/F Area (sq m) | 97 |
| Total Area (sq m) | 97 |
| Length (m) | 15.1 |
| Depth (m) | 9.5 |
| Ridge Height (m) | 3.9 |
| Roof Pitch (deg) | 35 |
| Number of Bays | 7 |
| Location | Avon |




