Back to Home Leisure Buildings
Home Leisure Buildings - WS01255
Also in: Oak Gazebo
This is a building we have previously constructed which you may want to use as a starting point for your design. All our buildings are designed and manufactured to your individual specifications.
Details
An oak framed gazebo with ballastrade.
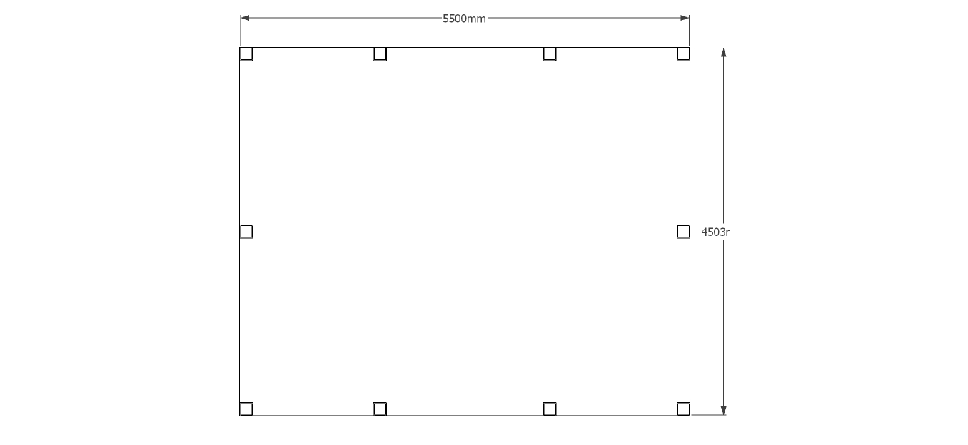
Dimensions
| G/F Area (sq m) | 24.8 |
| Total Area (sq m) | 24.8 |
| Length (m) | 5.5 |
| Depth (m) | 4.5 |
| Ridge Height (m) | 4 |
| Roof Pitch (deg) | 35 |
| Number of Bays | 3 |
| Location | Hampshire |




