Back to Oak Barns
Oak Barns - WS01249
Also in: Stables and Barns
This is a building we have previously constructed which you may want to use as a starting point for your design. All our buildings are designed and manufactured to your individual specifications.
Details
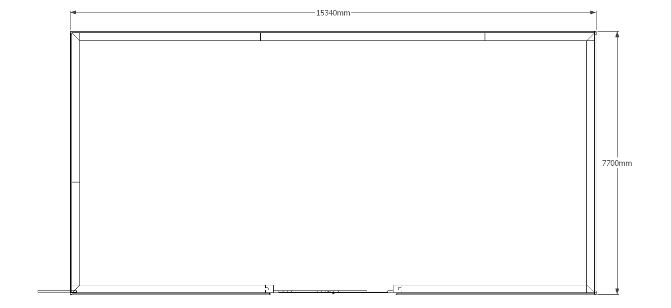
A large traditional oak frame barn building with one set of barn doors.
Dimensions
| G/F Area (sq m) | 118.1 |
| Total Area (sq m) | 118.1 |
| Length (m) | 15.3 |
| Depth (m) | 7.7 |
| Ridge Height (m) | 8.4 |
| Roof Pitch (deg) | 50 |
| Number of Bays | 5 |
| Location | Essex |




