Back to Home Leisure Buildings
Home Leisure Buildings - WS01248
Also in: Oak Gazebo
This is a building we have previously constructed which you may want to use as a starting point for your design. All our buildings are designed and manufactured to your individual specifications.
Details
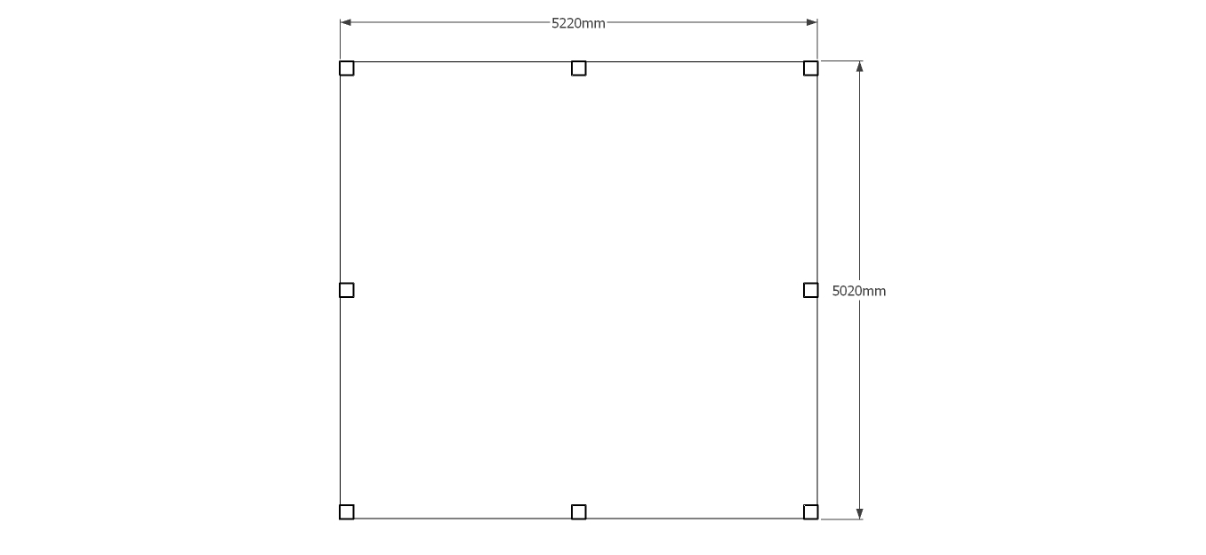
A two bay oak framed gazebo open all sides with gablets on the roof.
Dimensions
| G/F Area (sq m) | 26.2 |
| Total Area (sq m) | 26.2 |
| Length (m) | 5.2 |
| Depth (m) | 5 |
| Ridge Height (m) | 4.2 |
| Roof Pitch (deg) | 35 |
| Number of Bays | 2 |
| Location | East Sussex |




